direct naar inhoud van Toelichting
Plan: Klazienaveen, hoek Brugstraat en Van Echtenskanaal
Status: ontwerp
Plantype: omgevingsvergunning
IMRO-idn: NL.IMRO.0114.Zaak152462023-V501

Toelichting

Hoofdstuk 1 Inleidend hoofdstuk

1.1 Aanleiding tot de ruimtelijke onderbouwing

Door initiatiefnemers is een aanvraag omgevingsvergunning ingediend voor de herontwikkeling op de hoeklocatie Van Echtenskanaal NZ 130 en Brugstraat 1 in Klazienaveen. Voorgenomen bouwplan voorziet in het realiseren van een woongebouw. In dit woongebouw wordt op de begane grond een kleinschalige kantoorruimte (ca. 350 m2) met entree gerealiseerd. Achter het gebouw worden parkeervoorzieningen met bergruimten voor de bewoners van de woningen gerealiseerd. Op de begane grond en bovengelegen bouwlagen worden in totaal tien woningen (appartementen) gerealiseerd. Het bouwplan is in strijd met het geldend bestemmingsplan, zoals nader wordt toegelicht in paragraaf 1.3.

De gemeente heeft op basis van voorliggend bouwplan aangegeven in principe medewerking te willen verlenen aan de herontwikkeling op deze locatie.

1.2 Ligging plangebied

Het plangebied is gelegen aan de westrand van het centrumgebied van Klazienaveen, ten noordwesten van de Ovonde. De hoeklocatie is gelegen aan de invalswegen Brugstraat en aan Van Echtenskanaal NZ. Ten westen en ten noorden van het plangebied is lintbebouwing met woonbestemmingen gelegen. In oostelijke richting is bebouwing van het centrumgebied gelegen, waaronder de Dordsebrugflat tegenover het plangebied.

Het plangebied beslaat twee naast elkaar gelegen kadastrale kavels in gemeente Emmen, sectie I, nummer 10966 en 6818. Het plangebied heeft een omvang van 1260 m2. Figuur 1.1 is een indicatieve weergave van het hoekperceel en plangebied.

Op het perceel aan het Van Echtenskanaal NZ 130 (perceelnummer 10966) was voorheen een sportschool met bovenwoning gelegen. Dat gebouw is als gevolg van een brand inmiddels gesloopt. Op het perceel Brugstraat 1 (perceelnummer 6818) stond een leegstaand kantoor-/woonpand dat reeds is gesloopt.

afbeelding "i_NL.IMRO.0114.Zaak152462023-V501_0001.png"

Figuur 1.1: Een weergave van het plangebied op de hoeklocatie ten noordwesten van de Ovonde

1.3 Huidige planologische regelingen

Het plangebied is gelegen in het bestemmingsplan Klazienaveen, vastgesteld 19 december 2013. In het plangebied gelden verschillende enkelbestemmingen, waaronder ‘Detailhandel’ met een functieaanduiding ‘bedrijfswoning’ en ‘sportcentrum’, ‘Wonen – vrijstaand lintbebouwing’, ‘Tuin’ en ‘Verkeer’.

afbeelding "i_NL.IMRO.0114.Zaak152462023-V501_0002.png"

Figuur 1.2: Een weergave van het plangebied (zwarte kader) op de verbeelding van het vigerende bestemmingsplan 'Klazienaveen'

afbeelding "i_NL.IMRO.0114.Zaak152462023-V501_0003.png"

Figuur 1.3: Projectie van het voorgenomen bouwplan op de verbeelding van het vigerende bestemmingsplan 'Klazienaveen'

De voor ‘Detailhandel’ aangewezen gronden zijn bestemd voor:

  • detailhandel;
  • opslagruimte ten behoeve van de detailhandel;
  • sportcentrum ter plaatse van de aanduiding "sportcentrum";
  • bedrijfswoning ter plaatse van de aanduiding "bedrijfswoning";

met bijbehorende;

  • andere bouwwerken;
  • kunstwerken en waterwerken;
  • fiets- en voetpaden;
  • toegangswegen in- en uitritten;
  • parkeervoorzieningen;
  • groenvoorzieningen;
  • nutsvoorzieningen en waterhuishoudkundige voorzieningen;


De voor ‘Wonen-Vrijstaand lintbebouwing’ aangewezen gronden zijn bestemd voor:

  • vrijstaande woningen;
  • bijbehorende bouwwerken;
  • tuin en erven;

met bijbehorende:

  • andere bouwwerken;
  • sport- en speelgelegenheden;
  • toegangswegen in- en uitritten;
  • parkeervoorzieningen;
  • groenvoorzieningen;
  • nutsvoorzieningen en waterhuishoudkundige voorzieningen;


De voor ‘Tuin’ aangewezen gronden zijn bestemd voor:

  • tuin;

met bijbehorende:

  • andere bouwwerken;

De voor ‘Verkeer’ aangewezen gronden zijn bestemd voor:

  • wegen, fietspaden met hoofdzakelijk een functie voor het doorgaande verkeer;
  • informatiesystemen/signaleringsborden;
  • voorzieningen voor het openbaar vervoer;
  • taxistandplaats;
  • parkeervoorzieningen, waaronder ook parkeergarages ondergronds en bovengronds;

met bijbehorende:

  • andere bouwwerken;
  • kunstwerken en waterwerken;
  • toegangswegen, in- en uitritten;
  • groenvoorzieningen;
  • nutsvoorzieningen en waterhuishoudkundige voorzieningen.

Verder zijn binnen het plangebied de volgende facet- en paraplubestemmingsplannen van kracht:

  • ‘Facetbestemmingsplan, Emmen Archeologie (vastgesteld 28 april 2022);
  • 'Parapluplan Standplaatsen' (vastgesteld op 31 mei 2018);
  • 'Parapluplan Parkeernormen gemeente Emmen' (vastgesteld op 26 april 2018).


Vanuit het bestemmingsplan Emmen, Archeologie (facetbestemmingsplan) heeft het plangebied een dubbelbestemming ‘Waarde – Archeologie 4’. Dit wordt nader toegelicht in paragraaf 4.1.

Strijdigheden bouwplan

Het bouwplan is op verschillende punten strijdig met het vigerende bestemmingsplan, te weten:

  • Het bouwen en gebruiken van een woongebouw met 10 appartementen op de bestemmingen Detailhandel, Wonen – vrijstaand lintbebouwing en Tuin;
  • Het bouwplan is deels buiten de bouwvlakken van de bestemmingen Detailhandel en Wonen – vrijstaand lintbebouwing gelegen;
  • Het bouwen en gebruiken van een kantoorfunctie in het gebouw op de bestemming Detailhandel;
  • Het gebruiken van gronden ten behoeve van het parkeren in de bestemming Detailhandel;
  • Het bouwen en gebruiken van een bergingencomplex ten behoeve van het woongebouw in de bestemming Detailhandel en Wonen – vrijstaand lintbebouwing;
  • De bouwhoogte van het bouwplan bedraagt meer dan de ‘bestaande hoogte’ van inmiddels gesloopte bouwwerken. De bestaande bouwhoogte betrof ca. 8 meter. De hoogte van het bouwplan varieert van circa 6,3 tot circa 13,5 meter.


Procedurekeuze

Het juridisch planologisch mogelijk maken van het voorliggend bouwplan is mogelijk via een omgevingsvergunning ex artikel 2.1 lid 1 onder c. van de Wabo jo. artikel 2.12 lid 1 sub a onder 3. Wabo. Bij besluitvorming zal gemotiveerd moeten worden dat er geen strijd is met een goede ruimtelijke ordening. Daartoe is voorliggende ruimtelijke onderbouwing opgesteld.

1.4 Overzicht verricht onderzoek

Ten behoeve van het opstellen van de ruimtelijke onderbouwing zijn diverse onderzoeken verricht en adviezen gegeven. Daarnaast is er informatie gebruikt uit onderzoeken en adviezen die in een ander kader zijn uitgevoerd. De conclusies uit de verschillende onderzoeken en adviezen zijn verwerkt in de toelichting. De volgende onderzoeken zijn verricht:

  • 1. Aerius-berekeningen;
  • 2. Akoestisch onderzoek (Wet geluidhinder);
  • 3. Onderzoek geluidwering gevels;
  • 4. Verkennend bodemonderzoek;
  • 5. Ecologisch onderzoek;
  • 6. Bezonningstudie;
  • 7. Vormvrije m.e.r. aanmeldnotitie;
  • 8. Watertoets.

Hoofdstuk 2 Beleid

2.1 Gemeentelijk beleid

2.1.1 Structuurvisie gemeente Emmen 2020, Veelzijdigheid troef

Structuurvisie Emmen 2020, Veelzijdigheid troef, is op 24 september 2009 vastgesteld door de Raad. Het document is opgesteld als ruimtelijke vertaling van de ambities gesteld in de Strategienota Emmen 2020, vastgesteld in de raadsvergadering van september 2001. De structuurvisie geeft de hoofdlijnen van de ruimtelijke ontwikkeling van de gemeente Emmen weer. In de structuurvisie wordt de ruimtelijke structuur van 2020 geschetst aan de hand van een aantal thema's, te weten landschap, duurzaamheid, verkeer, werken, wonen, voorzieningen en veiligheid. Voor ieder thema is een hoofdkoers bepaald.

De Structuurvisie Emmen 2020, Veelzijdigheid troef richt zich op een accentverschuiving van kwantiteit naar kwaliteit en differentiatie van woonmilieus: de opgave ligt er om de woningvoorraad in lijn te brengen en te houden met de woonwensen van huidige én toekomstige inwoners. Naast een kwaliteitsimpuls van de bestaande woningen wordt ingezet op wervende woonmilieus. Om ervoor te zorgen dat de woningmarkt op orde blijft, is een continue aanpassing aan de veranderende vraag geboden. Dit geldt niet alleen voor de kern van Emmen, maar ook voor de dorpen. Zo ontstaat op termijn een cyclische vernieuwing van de bestaande woongebieden.

2.1.2 Woonvisie 'BuitengeWoon Thuis in Emmen' 2022-2030

De Woonvisie 'BuitengeWoon Thuis in Emmen' maakt een koerswijziging ten opzichte van de vorige woonvisie. De gemeente Emmen is geen krimpregio meer en sluit de woningmarkt aan bij de actuele woonwensen. De ambitie is om te bouwen aan een divers woningaanbod, herstructurering op te starten in meerdere gebieden, te focussen op het toevoegen van senior- en starterswoningen en om 4.000 woningen te bouwen in de periode van 2022-2030. Daarbij wordt gefocust op leefbaarheid, beschikbaarheid, betaalbaarheid, wonen & zorg, en duurzaamheid van de woningvoorraad en woonomgeving.

De visie luidt als volgt: "de gemeente Emmen biedt een gevarieerde woonomgeving en beschikt over een breed, duurzaam aanbod van woningen in diverse prijsklassen, in alle kernen. Het aanbod sluit aan bij de behoeften en financiële mogelijkheden van de huidige en toekomstige bewoners."

Daarbij heeft de gemeente Emmen de volgende ambities:

  • Emmen draagt zorg voor een aantrekkelijke, leefbare woonomgeving waar iedereen zich thuis voelt en zichzelf naar vermogen kan redden;
  • Emmen geeft ruimte aan vernieuwende woonconcepten;
  • Emmen versterkt haar groene omgeving, zet in op een duurzaam woon- en leefklimaat en een toekomstbestendige woningvoorraad.
2.1.2.1 Trends en ontwikkelingen

In samenwerking met de corporaties en huurdersorganisaties heeft de gemeente Emmen in 2020 een woningmarktonderzoek laten uitvoeren. Dit onderzoek toont aan wat de huidige woonbehoefte is en geeft de richting aan waarin de woningvraag zich ontwikkelt tot 2030.

Uit het woningmarktonderzoek blijkt dat het aantal huishoudens tot 2030 toeneemt met ongeveer 1.500 huishoudens door gezinsverdunning. Een van de oorzaken is de afname van de gemiddelde huishoudensgrootte tot iets meer dan 2 personen. Ook neemt het aandeel huishoudens met een leeftijd van 75 jaar of ouder toe en er komt een grotere vraag naar sociale huurwoningen vanuit senioren. Daarnaast hebben externe ontwikkelingen, zoals landelijke krapte op de woningmarkt, ook invloed op het inwonertal. Dit is moeilijk te voorspellen.

Het aandeel 75-plussers in de gemeente zal toenemen. Omdat de gemeente Emmen deze groep inwoners passend wil huisvesten, is het zaak om levensloopbestendige woningen te bouwen. Dit zal ook doorstroming stimuleren, waardoor woningen beschikbaar komen voor starters.

De meeste verhuisbewegingen vinden plaats binnen de gemeente Emmen, de regio en daarna Noord-Nederland en de rest van Nederland. In onderstaande tabel is te zien hoe het aantal vestigers is verdeeld over de verschillende gebieden, gemiddeld gezien over de jaren 2014-2018.

afbeelding "i_NL.IMRO.0114.Zaak152462023-V501_0004.png"

Fig 2.1: Tabel met een overzicht van het aantal verhuisbewegingen waaruit blijkt hoe het aantal vestigers is verdeeld over de verschillende gebieden, gemiddeld gezien over de jaren 2014-2018


De beleving van veel mensen is dat er op dit moment (2022 -2023) veel mensen vanuit het westen naar de gemeente verhuizen. Dit aantal is echter al meerdere jaren ongeveer even hoog: het zijn zo’n 600 vestigers, die zes procent uitmaken van het totale aantal vestigers. Ook in 2021 ligt dit aantal even hoog. Er is dus geen sprake van een toename.

2.1.2.2 Kwalitatieve en kwantitatieve woonbehoefte

Op basis van de woonwensen van de inwoners van de gemeente Emmen en de toekomstige vraag naar woningen op basis van de verwachte huishoudensontwikkelingen, ontstaat er een beeld van de gewenste woningvoorraad in 2030. Dit beeld laat zien hoeveel woningen er extra nodig zijn en ook naar welke woningtypen vooral vraag is ten opzichte van de huidige woonvoorraad. Deze 'mismatch' ontstaat als niet wordt ingegrepen in de huidige woningvoorraad. In onderstaande grafiek is de verwachte 'mismatch' in 2030 weergegeven.

afbeelding "i_NL.IMRO.0114.Zaak152462023-V501_0005.png"

Fig 2.2: Een grafiek waarin de verwachte 'mismatch' in 2030 is weergegeven

Om de missie in relatie tot de beschikbaarheid van voldoende passende woningen en vernieuwende woonconcepten te behalen, werkt de gemeente Emmen de komende jaren voor alle wijken en dorpen vanuit de volgende vier uitgangspunten:

  • 1. Het aanbieden van een grotere diversiteit aan woningen in de wijken en dorpen: In een aantal wijken en dorpen is er sprake van een grote eenzijdigheid van woningen. Meestal gaat het hierbij om veel van hetzelfde type eengezinswoningen. Deze eenzijdigheid wil de gemeente doorbreken door andere woningtypen toe te voegen. Het kan gaan om het toevoegen van andere woningen in de traditionele bouw zoals grotere, luxere woningen en kleinere woningen voor bijvoorbeeld starters of senioren.
  • 2. Herstructurering van oudere woonbuurten: Om de grotere diversiteit van het woningaanbod te bereiken en de eenzijdigheid te doorbreken, is op sommige plekken herstructurering nodig. Er zijn in de wijken en dorpen veel woonbuurten die inmiddels 50 jaar of ouder zijn. Een deel van de woningen, en het openbaar gebied, in deze woonbuurten zijn niet meer toekomstbestendig. Daarom is op veel plekken een verbeteringsslag nodig.
  • 3. Ontwikkelen van diverse seniorgeschikte woningen en starterswoningen: Senioren (65-plussers) maken een steeds groter deel uit van onze bevolking. Uit het woningmarktonderzoek is gebleken dat er een tekort is aan passende woningen voor deze groep. Ook is het van belang om geen woningen te bouwen die alleen aantrekkelijk zijn voor senioren, omdat op lange termijn het aandeel senioren weer gaat afnemen volgens de bevolkingsprognoses. De seniorenwoningen die worden gebouwd, moeten daarom ook aantrekkelijk zijn voor andere doelgroepen.
  • 4. Een groei van 4.000 woningen tot 2030: Er is op dit moment sprake van een woningtekort. De autonome groei bestaat tot 2030 uit 1.500 woningen. Daarbovenop heeft de gemeente een extra ambitie van vijf procent groei van de woningvoorraad. In totaal komt de gemeente hiermee op een ambitie 4.000 extra woningen te bouwen tot 2030. Dit bestaat uit zowel koopwoningen als uit huurwoningen. Uit het woningmarktonderzoek is namelijk gebleken dat er een toenemende vraag is naar sociale- en midden huurwoningen. Daarom stimuleert de gemeente ook een groei van 5% in sociale- en midden huurwoningen.

Om te zorgen dat gebouwd wordt waar daadwerkelijk behoefte aan is, wordt voor het totaal aan 4.000 woningen gestreefd naar de volgende doelgroepenverdeling bij de bouw van woningen:

  • 30% diverse seniorgeschikte woningen;
  • 30% woningen voor starters en 1- en 2-persoonshuishoudens;
  • 15% alternatieve woonvormen;
  • 25% gezinswoningen.

Om de leefbaarheid van de woonomgeving te verbeteren wil de gemeente Emmen inzetten op de bouw van meer diversiteit in de woningvoorraad en het toevoegen van nieuwe, alternatieve woonvormen. Ook wordt onder andere ingezet op het realiseren van ontmoetingsplekken, herstructurering en gebiedsontwikkeling in verouderde woonbuurten, fysieke en sociale veiligheid en een leefomgeving die uitnodigt tot gezond gedrag.

2.1.2.3 Kwantitatief afwegingskader

Richting 2030 heeft de gemeente Emmen een ambitie om ten minste 4.000 woningen aan de woningvoorraad toevoegen. Deze woningen worden verspreid over de hele gemeente toegevoegd. In onderstaand afwegingskader zijn de globale verdeling van de woningen over de vier gebieden benoemd. Het dorp Klazienaveen valt onder het gebied ‘De Blokken”.

In onderstaande tabel is de indicatieve toevoeging aan de woningvoorraad op gebiedsniveau van 2021-2030 weergegeven. Klazienaveen is gelegen in het gebied ‘De Blokken’. Zoals te zien, zijn voor dat gebied tot 2030 in totaal 770 extra woningen nodig.

afbeelding "i_NL.IMRO.0114.Zaak152462023-V501_0006.png"

Fig 2.3: Een tabel waarin de indicatieve toevoeging aan de woningvoorraad op gebiedsniveau is weergegeven

In de Blokken ligt een aantal kernen: Klazienaveen, Klazienaveen-Noord, Barger-Compascuum, Nieuw-Dordrecht, Nieuw-Schoonebeek, Weiteveen en Zwartemeer. Het aantal huishoudens in De Blokken groeit nog tot 2030. De gemeente heeft als ambitie een groei van vijf procent van de woningvoorraad te realiseren. Daarom is tot 2030 de mogelijkheid voor het toevoegen van 770 woningen opgenomen. Klazienaveen heeft een aanzuigende werking op de omliggende dorpen, omdat hier veel voorzieningen zijn. Dit betekent dat de gemeente wat betreft het toevoegen van extra woningen vooral naar de mogelijkheden in Klazienaveen kijken.

Er wonen relatief veel (jonge) gezinnen in de Blokken, vergeleken met de andere gebieden. De vraag van deze huishoudens naar (zelfbouw) kavels is groter dan in de andere gebieden. Met het toevoegen van seniorenwoningen wordt de gewenste doorstroming gestimuleerd, waardoor met name vrijstaande woningen op grote kavels beschikbaar komen op de woningmarkt. Onderstaande tabel geeft de woningmogelijkheden in De Blokken weer, met tevens het aantal woningen voor Klazienaveen.

afbeelding "i_NL.IMRO.0114.Zaak152462023-V501_0007.png"

Fig. 2.4: Woningmogelijkheden in De Blokken en aantal woningen voor Klazienaveen

In Klazienaveen is de komende jaren veel aandacht voor de herstructurering van de bestaande voorraad. In Klazienaveen is het actualiseren van het bestaande dorpsprogramma nodig, evenals een herziening van het Masterplan Klazienaveen dat specifiek voor het centrum van Klazienaveen is opgesteld. De komende jaren ligt de focus op het stimuleren van ontwikkelingen in het centrum van Klazienaveen om zo vernieuwingen en verbetering van panden te realiseren en de uitstraling van het centrum te verbeteren. Daardoor ontstaat ruimte om extra appartementen in het centrum toe te voegen voor senioren, kleine huishoudens en starters.

2.1.2.4 Toetsing van het initiatief aan de 'Woonvisie 2022-2030'

In voorliggend bouwplan is sprake van nieuwbouw van een woongebouw met tien appartementen en een kleinschalig kantoorgebouw in het centrum van Klazienaveen. De appartementen zijn geschikt voor zowel de doelgroepen starters en alleenstaanden, in een koopsegment.

De ontwikkeling sluit aan bij de herstructurering (inbreidingslocatie) van het centrumgebied van Klazienaveen. Er is sprake van een verbetering van de ruimtelijke kwaliteit. Het beoogde kantoor-/woongebouw is kwalitatief hoogwaardig en is een ‘eyecatcher” op een prominente hoeklocatie aan de Ovonde. Het gebouwontwerp in samenspraak tussen initiatiefnemer en de gemeente zorgvuldig tot stand gekomen. Bovendien wordt met de voorgenomen ontwikkeling bijgedragen aan het toevoegen van andere woningtypen (appartementen) dan gezinswoningen. De woningen (appartementen) zijn gelijkvloers en het gebouw beschikt over een lift, waardoor sprake is van levensloopbestendige appartementen die eventueel ook geschikt zijn voor de doelgroep ouderen. Hiermee wordt aangesloten bij de doelen uit de woonvisie om een grotere diversiteit aan woningen aan te bieden en om appartementen voor starters en alleenstaanden in een koopsegment aan het centrum van Klazienaveen toe te voegen.

De toename van tien (extra) appartementen past binnen de woonbehoefte van in totaal 770 woningen in het gebied ‘De Blokken’ en, meer specifiek, 400-550 woningen in Klazienaveen. Hiermee wordt voorzien in een deel van de woonbehoefte. Tevens wordt een specifiek woningtype gebouwd die aansluit bij de behoefte, namelijk appartementen.

Geconcludeerd wordt dat de voorgenomen ontwikkeling zowel kwantitatief als kwalitatief in overeenstemming is met de Woonvisie 2022-2030 van de gemeente Emmen.

2.1.3 Welstandsbeleid

De welstandsnota 2016, gemeente Emmen is opgesteld uitgaande van het motto: 'Loslaten van kan, regelen wat ertoe doet'.

De gemeente hecht waarde aan de omgevingskwaliteit en ziet daarbij onderscheid tussen de verschillende gebieden die de gemeente rijk is. Niet ieder gebied vraagt om dezelfde benadering. De welstandsnota 2016 kent drie welstandsniveaus: welstandsvrij, welstandsluw en welstandsniveau hoog. Voor een aantal gebieden is de ambitie naar beneden bijgesteld, waardoor welstandsvrije gebieden zijn toegenomen. Het niveau welstandsluw is geïntroduceerd. In de luwe gebieden wordt op een aantal basale aspecten van welstand gestuurd en wordt afstand genomen van gedetailleerde beoordelingen. Daarnaast moeten gebieden die van meer waarde zijn - niveau hoog - goed beschermd blijven. Deze gebieden leveren een belangrijke bijdrage aan de identiteit van Emmen. Voornamelijk zijn dit de centra van dorpen, wijken en de beschermde dorpsgezichten. Voor deze gebieden geldt een hoog ambitieniveau. Het gemeentebestuur beoogt met deze nota een dynamische welstand in Emmen, waarbinnen ruimte is voor dialoog en 'kwalitatief herstel' met de samenleving.

Het bestemmingsplan en de welstandsnota zorgen samen voor het behoud van de ruimtelijke kwaliteit. Het bestemmingsplan geeft aan wat, hoeveel, in welke vorm en waar er gebouwd mag worden. Het welstandsbeleid geeft aan hoe het gebouw eruit mag komen te zien. Dit wil zeggen dat het welstandsbeleid moet voorkomen dat er gebouwen gebouwd worden die afbreuk doen aan de omgeving. Het plangebied is gelegen in een gebied met een welstandsniveau ‘hoog’.

Relatie tot het project

Het bouwplan is getoetst aan de welstandscriteria, zoals omschreven in de gemeentelijke welstandsnota en daarbij komt de Adviescommissie voor Omgevingskwaliteit bij advies d.d. 9 januari 2023 tot een positieve advisering.

2.1.4 Masterplan Klazienaveen Centrum 2006

Het Masterplan Klazienaveen Centrum is door de Raad op 30 november 2006 vastgesteld. Het zet in op concentratie van de detailhandel en voorzieningen en verbetering van de kwaliteit van het centrum. Dit Masterplan is opgesteld om inwoners van Klazienaveen, ondernemers in het centrum, investeerders en bouwers uit te dagen om daadwerkelijk aan de slag te gaan met het verder te versterken van het centrum.

In het Masterplan geeft naast een korte beschrijving van de opgave en de ligging van het centrum een uitgebreide analyse van Klazienaveen en haar centrum. In deze analyse komen de historie, functionele gebieden, water- en groenstructuur en verkeer aan bod. In een sterkte- en zwakteanalyse zijn de belangrijkste kwaliteiten en knelpunten van het huidige centrum benoemd. Een bondige beschrijving van het vigerende beleid verduidelijkt de wensen die ten aanzien van centrum in het verleden al waren vastgelegd.

Onderstaande figuur 2.5 biedt een weergave van de kaart van het Masterplan Klazienaveen.

afbeelding "i_NL.IMRO.0114.Zaak152462023-V501_0008.png"

Fig. 2.5: Kaartbeeld Masterplan Centrum Klazienaveen

Voor de huidige woongebieden in de noordwand van het centrum gaat het Masterplan uit van handhaving van de woonfunctie waarbij voor het deel tussen de Plus supermarkt en de Mr. Ovingstraat het historische beeld behouden blijft. Ook voor de entrees van het centrum (de Brugstraat, Dordsedijk en Mr. Ovingstraat) is het beleid gericht op behoud en versterken van de woonfunctie. Bestaande bedrijven en detailhandel aan deze entrees dienen, indien de mogelijkheid zich voordoet, vervangen te worden door woningen. Voor het gehele centrum geldt dat de gemeente het wonen boven de commerciële ruimtes stimuleert.

De beeldkwaliteit van de bestaande bebouwing behoeft verbetering. De voorkeur gaat uit naar nieuwe bebouwing in drie bouwlagen zodat de wanden meer recht doen aan het dorpse karakter van Klazienaveen. Op bepaalde plekken in het centrum is bebouwing in vijf bouwlagen gewenst om bijzondere plekkern te accentueren of het centrum zichtbaar te maken vanaf de doorgaande wegen. Ter plaatse van de entrees van het centrum vanaf de Dordsedijk, Brugstraat en Mr. Ovingstraat kan het profiel vijf bouwlagen verdragen. In het Masterplan zijn in het plangebied drie bouwlagen beoogd, zoals met een aanduiding is aangegeven op onderstaande afbeelding.

afbeelding "i_NL.IMRO.0114.Zaak152462023-V501_0009.png"

Fig. 2.5: Kaartbeeld Masterplan Centrum Klazienaveen – beoogde bouwlagen

Relatie tot het project

Het plangebied is gelegen op de hoek aangeduid als ‘Commerciële functies vervangen door woningen’. In het Masterplan is daarbij te lezen: “teneinde de entree van Klazienaveen en zijn centrum aantrekkelijk en uitnodigend te maken wordt de zone ten westen van de Brugstraat en Dordsedijk aangewezen als ontwikkelingszone voor wonen, eventueel gecombineerd met zakelijke dienstverlening".

Het voorkeursbeleid voorziet erin om bestaande bedrijven en detailhandel aan de entree van Klazienaveen te vervangen door woningen. Zoals het Masterplan ook laat lezen kan wonen echter wel gecombineerd worden met zakelijke dienstverlening. Het voorliggende bouwplan voorziet in het realiseren van een woongebouw met tien appartementen en een kleinschalig kantoorgebouw.

Het in het bouwplan opgenomen (ondergeschikte) kantoorgebouw is bedoeld om de huidige bank- en administratiekantoor van initiatiefnemer, die momenteel een kantoor heeft gevestigd aan de overzijde van de Ovonde, naar de nieuwe locatie te verhuizen. Onder de Evert ten Napelflat houdt initiatiefnemer momenteel kantoor. Initiatiefnemer heeft bij de planontwikkeling gezocht naar een win-win. Enerzijds om een doorn in het oog en de rotte kies na de brand van de voormalige sportschool te herontwikkelen ten behoeve van wonen. Anderzijds om zijn kantoor te verhuizen naar de nieuwe locatie om nieuwe ruimte te vinden voor zijn kantoor die op de huidige locatie te klein is geworden voor de huidige en toekomstige werkzaamheden. De gekozen win-win sluit aan bij de beleidsmatige wens om voor de entree van het centrum van Klazienaveen het wonen te versterken.

Een dergelijke ondergeschikte commerciële functie (ca. 350 m2) is op deze locatie vanuit de bovengenoemde context en het gemeentelijke voorkeursbeleid alles overziend ruimtelijk aanvaardbaar te achten. Het realiseren van een woongebouw met tien appartementen en een kleinschalig kantoorgebouw is niet in strijd is met de ambitie en visie vanuit het Masterplan.

Ten aanzien van het aantal bouwlagen geeft het Masterplan aan dat de beeldkwaliteit verbetering behoeft. Het voorkeursbeleid van het Masterplan gaat uit naar nieuwe bebouwing in drie bouwlagen zodat de wanden meer recht doen aan het dorpse karakter van Klazienaveen. Volgens het Masterplan is op bepaalde plekken in het centrum bebouwing in vijf bouwlagen gewenst om bijzondere plekken te accentueren of het centrum zichtbaar te maken vanaf de doorgaande wegen. Ter plaatse van de entrees van het centrum vanaf de Dordsedijk, Brugstraat en Mr. Ovingstraat kan het profiel vijf bouwlagen verdragen. Daaraan wordt toegevoegd dat bijzondere beeldbepalende bebouwing is gewenst op plekken waar het centrum van Klazienaveen zich presenteert richting de doorgaande verkeerroutes. Vooral de gevel van de huidige bebouwing ten noordoosten van de Dordsebrug is weinig uitnodigend. Een nieuwe architectonisch hoogwaardige gevel kan als uithangbord voor het centrum gaan functioneren.

In onderstaande figuur 2.6 is de ontwerpgedachte gevisualiseerd.

afbeelding "i_NL.IMRO.0114.Zaak152462023-V501_0010.png"

Fig. 2.6: Ontwerpgedachte – volumestudie aantal bouwlagen en trapsgewijze opbouw

Binnen de ruimtelijke kaders van het Masterplan kan een gebouw met drie bouwlagen leiden tot een volumestudie zoals dat in afbeelding (1) van figuur 2.6 is weergegeven. Drie bouwlagen op de perceelgrens maakt dat de naastgelegen woning (Brugstraat 2) geconfronteerd wordt met een hoge blinde gevels. Er is voor gekozen om de noord- en westzijde van het ontwerp op meer afstand te plaatsen. De noordelijke gevel van het gebouw is op ca. 5 meter op de perceelgrens gelegen. Daarnaast is in het ontwerp een derde bouwlaag ‘opgepakt’ en verplaatst naar de hoek van het gebouw, grenzend aan de Ovonde. Aan de noordzijde heeft het gebouw, grenzend aan de woning Brugstraat 2, twee bouwlagen met een kap. De trapsgewijze opbouw loopt aan de westzijde af naar drie bouwlagen en sluit aan op de naastgelegen woning(en) met twee bouwlagen en een (langs)kap. Het gebouw is daarmee ten opzichte van de naastgelegen lintbebouwing trapsgewijs opgebouwd

Daarmee is het huidige ontwerp zorgvuldig tot stand gekomen en is getracht zoveel als mogelijk aansluiting te zoeken op de bestaande omliggende lintbebouwing, doordat naar de omgeving toe delen van het gebouw lager zijn geworden.

In het Masterplan zijn in het plangebied drie bouwlagen beoogd. Rond de entree van Klazienaveen, ter hoogte van de Ovonde zijn vijf bouwlagen beoogd. De hoeklocatie van het plangebied aan de Brugstraat en Van Echtenskanaal NZ vraagt om een accent en met de trapsgewijze opbouw tot vier bouwlagen doet deze hoek mee in het accentueren van het centrumgebied aan de Ovonde en langs de doorgaande verkeersroutes.

Omdat er sprake is van welstandscriteria ‘hoog’ is voor een plan van dit formaat een stedenbouwkundig kader wenselijk.

Er is na het bestuurlijke besluit voor dit plan op deze locatie in samenspraak met de gemeente en de Welstandscommissie gekeken naar een zo'n goed mogelijke inpassing in de omgeving en op deze locatie. Vanuit de gemeente is ten tijde van de welstandsadvisering op basis van de verschillende ontwerpen gekeken naar een stedenbouwkundig model wat kan voldoen. Het gebouwontwerp is door de Adviescommissie voor Omgevingskwaliteit positief beoordeeld (paragraaf 2.1.3).

Geconcludeerd kan worden dat het bouwplan voornamelijk is gericht op wonen met een ondergeschikt een zakelijke dienstverlening, hetgeen aansluit bij het Masterplan. Het gebouw voorziet in een accent op de hoek van het Van Echtenskanaal NZ en Brugstraat, bij de entree van Klazienaveen. Het gebouw heeft op de hoek een vierde bouwlaag waardoor een prominente hoek zal ontstaan, die vanaf de hoek trapsgewijs afloopt naar de naastgelegen lintbebouwing. Alles overziend kan geconcludeerd worden dat het bouwplan daarmee past in de geest van het Masterplan Klazienaveen centrum.

2.1.5 Erfgoednota Emmen 2017-2022

Met de 'Erfgoednota Emmen 2017-2022' geeft de gemeente Emmen uitdrukking aan het belang dat cultuurhistorie voor de samenleving inhoudt. In de erfgoednota benoemt de gemeente Emmen haar ambities ten aanzien van het benutten van de kansen en kwaliteiten van haar erfgoed. De gemeente Emmen herkent de krachtige stimulans die het erfgoed voor de gemeenschap in cultureel, sociaal-maatschappelijk, economisch en ruimtelijk opzicht kan bieden. Met het vaststellen van de erfgoednota wordt de betekenis van het erfgoed duurzaam verankerd in ieders denken en doen. De inspanningen die de gemeente Emmen verricht hebben ook een wettelijke grondslag: de Erfgoedwet, de Archiefwet en de Omgevingswet (inwerkingtreding op 1 januari 2024) verplichten gemeenten hun cultuurhistorische potentie te inventariseren en de omgang hiermee in ruimtelijke plannen op te nemen.

De nota behandelt de thema’s historische geografie, historische stedenbouw en bouwkunst, historische archieven en museale collecties en de immateriële tradities. Het thema archeologie maakt eveneens deel uit van de alomvattende noemer ‘erfgoed’ of ‘cultuurhistorie’, maar is in 2013 al in de 'Beleidsnota Archeologie 2013-2018' en de 'Archeologische Beleidskaart Emmen' uitgewerkt. Bij de gemeentelijke erfgoednota hoort de erfgoedkaart.

afbeelding "i_NL.IMRO.0114.Zaak152462023-V501_0011.png"

Fig 2.7: Een weergave van de Cultuurhistorische Waardenkaart van de gemeente Emmen, met daarop het plangebied aangeduid in het kader

Op de erfgoedkaart is het plangebied aangeduid met ‘bijzondere gebouwen en objecten'. Dit maakt dat het plangebied en de omgeving uit het oogpunt van historische stedenbouwkunde van belang zijn. Bij historische bouwkunde gaat het niet om één gebouw, maar om dorpen of wijken waar gebouwen duidelijk met elkaar te maken hebben. Dit is in de hele gemeente te vinden. Voorbeelden zijn de wijken in Emmen, de lintdorpen zoals Klazienaveen en de esdorpen zoals Weerdinge. De historische bouwkunde wil de gemeente graag herkenbaar houden. Nieuwe ontwikkelingen worden zo goed mogelijk aangesloten op de bestaande omgeving. Het plangebied is aangeduid als 'lintstructuur, periode 1850-1940'. De maatregel die daarbij hoort is 'herkenbaar houden'.

De Brugstraat wordt eveneens vermeld als 'historische infrastructuur'. De Brugstraat is daarmee ook aangewezen voor de maatregel 'herkenbaar houden'. Ten aanzien van 'lintstructuur' vermeldt de erfgoednota het volgende: 'lintstructuur met een vrij dichte verkavelingsstructuur, aangelegd na 1900. Het lint vormt een belangrijke structuur van het dorp, samen met het lint langs het kanaal. Het lint is stedenbouwkundig zeer waardevol vanwege deze hoofdstructuur. Architectonisch is het minder waardevol omdat de bebouwing uit diverse bouwperioden komt en her en der ook nieuwe ingrepen zijn gedaan. Het is wel een zeer kenmerkende structuur voor de gemeente Emmen en daarmee heeft het enige zeldzaamheid in Nederland'.

De erfgoednota geeft aan dat bij nieuwe ontwikkelingen wordt geprobeerd om deze zo goed mogelijk bij de bestaande omgeving aan te laten sluiten. Het plangebied is aangeduid als 'lintstructuur, periode 1850-1940'. De maatregel die daarbij hoort is 'herkenbaar houden'.

Het voormalig gebouw op de locatie Van Echtenskanaal NZ 130 is een aangeduid als ‘bijzonder gebouw en object’ (een beeldbepalend bouwwerk), echter is het gebouw als gevolg van een calamiteit (brand) te niet gegaan en inmiddels gesloopt.

Relatie tot het project

Het ontwerp is zorgvuldig tot stand gekomen en er is getracht zoveel als mogelijk aansluiting te zoeken op de bestaande omliggende lintbebouwing, omdat naar de omgeving toe delen van het gebouw lager zijn geworden. De hoeklocatie van het plangebied aan de Brugstraat en Van Echtenskanaal NZ vraagt om een accent en met trapsgewijze opbouw tot vier bouwlagen doet deze hoek mee in het accentueren van het centrumgebied aan de Ovonde en langs de doorgaande verkeersroutes.

2.1.6 Parkeerbeleid
2.1.6.1 Integrale parkeervisie gemeente Emmen

In oktober 2017 heeft de gemeenteraad van Emmen de 'Integrale parkeervisie gemeente Emmen' vastgesteld. Deze visie vervangt de parkeernota van 2010. De visie is het kader voor het bepalen van de parkeeropgave bij fysieke ontwikkelingen op alle niveaus. Het is een leidraad voor het beoordelen van de parkeeropgave van stedenbouwkundige visies & plannen voor (her-)ontwikkeling van de fysieke leefomgeving en is ook het kader dat invulling geeft aan het begrip 'voldoende parkeer- of stallingsruimte dan wel voldoende laad- of losruimte in bestaande en op ontwikkeling gerichte nieuwe bestemmingsplannen'. De visie bevat ten aanzien van de hoeveelheid parkvoorzieningen en het aantal los- en laadplaatsen het beoordelingskader voor het verlenen van een omgevingsvergunning voor het bouwen en- of wijzigen gebruik.

2.1.6.2 Parapluplan Parkeernormen gemeente Emmen

In het ‘Parapluplan parkeernormen gemeente Emmen’ dat van kracht is voor het plangebied wordt in artikel 4.2 ‘Parkeerregeling bouwen’ het volgende bepaald:

  • a. Een bouwwerk, waarvan een parkeerbehoefte en/of laad- en losplaatsen wordt verwacht, mag niet worden gebouwd of verbouwd wanneer op het bijbehorende bouwperceel of in de directe omgeving niet in voldoende parkeergelenheiden en/of laad- en losplaatsen is voorzien.
  • b. Voorafgaand aan de verlening van een omgevingsvergunning wordt aan de hand van de meeste recente parkeervisie van de gemeente Emmen op het moment van de aanvraag om een omgevingsvergunning bepaald of is voorzien in voldoende parkeergelegenheid en/of laad- en losplaatsen voor hetgeen is aangevraagd.

Relatie tot het project

Het project voorziet in het realiseren van een woongebouw met tien appartementen en een kleinschalig kantoorgebouw (ca. 350 m2). Volgens de CROW-rekentool geeft dat een volgend beeld:

afbeelding "i_NL.IMRO.0114.Zaak152462023-V501_0012.png"

afbeelding "i_NL.IMRO.0114.Zaak152462023-V501_0013.png"

Fig. 2.8: Uitsnede CROW -rekentool voor de voorgenomen ontwikkeling van een woongebouw met tien appartementen en een kantoorruimte

Er is voor dit project is in beginsel uitgegaan van het algemeen geldende minimumnorm. De CROW-parkeernormen geven geen starre, exacte normen, maar een bandbreedte kennen met een minimum- en maximumnorm. De initiatiefnemer van een nieuwe ontwikkeling dient in beginsel te voldoen aan de minimumnormen, zodat parkeerproblemen niet worden afgewenteld op de omgeving. Wanneer de initiatiefnemer extra kwaliteit wil bieden bij een ontwikkeling, kunnen meer parkeerplaatsen dan de minimumnorm realiseren.

Ook wanneer de behoefte bij een specifieke ontwikkeling hoger wordt verwacht dan het gemiddelde, kan er voor de maximumnorm gekozen worden. Er is geen aanleiding te veronderstellen dat sprake is van enige parkeerdruk aan de randen van het centrum van Klazienaveen.

Daarom wordt voor dit project uitgegaan van minimaal 14 parkeerplaatsen. In het plangebied zijn in totaal 11 parkeerplaatsen opgenomen. Deze parkeerplaatsen zijn voor de bewoners van de appartementen bestemd. In het plangebied is onvoldoende ruimte beschikbaar om daar de totale parkeerbehoefte te realiseren. In het plan is zorgvuldig rekening gehouden met het beeldkwaliteit van de gebouw, waarbij expliciet gekozen is voor een ‘groene’ aanblik (paragraaf 3.4 Groenstructuur), waardoor parkeren voor het gebouw (op eigen perceel) uitgesloten is.

Het plan dient echter te voorzien in voldoende parkeerplaatsen voor de ontwikkelingen binnen het plangebied, zodat de bestaande parkeerdruk niet toeneemt. Het parkeren dient daarom voor de overige minimaal drie parkeerplaatsen ruimte te zien te vinden in de openbare ruimte.

Algemene beleidslijn in de gemeentelijke parkeervisie (mede vanuit de rechtspraak) voorziet erin dat bewoners op redelijke afstand van hun woning moeten kunnen parkeren (waarbij de gemeente geen parkeerplaats voor de deur kan garanderen). Een loopafstand van 100 meter (CROW-norm) wordt als acceptabel beschouwd. Binnen de 100 meter van het plangebied zijn meerdere openbare parkeerplaatsen aanwezig. Concreet gaat het om een parkeerterrein ter hoogte van de Dordsebrugflat en fysiopraktijk Klazienaveen, een parkeerterrein achter en voor de Versmarkt, een parkeerterrein ten oosten van de Ovonde en een parkeerkelder onder Het Schip. Deze openbare parkeerplaatsen bieden ruimte voor circa 210 parkeerplaatsen.

Het plan zal als gevolg van drie parkeerplaatsen niet leiden tot een onevenredige parkeeroverlast, omdat in de omgeving van het plangebied voldoende (openbare) parkeerplaatsen beschikbaar zijn om de extra parkeerbehoefte op te vangen. Deze parkeerplaatsen zijn op een aanvaardbare loopafstand van maximaal 100 meter van het plangebied gelegen.

Fietsparkeren

De gemeente wil het fietsgebruik stimuleren. Het fietsparkeren is in het plan als volgt opgelost. Elk appartement heeft een (verplichte) buitenberging. Deze buitenberging is tevens vanuit het Bouwbesluit 2012 verplicht gesteld teneinde fietsen en scootmobiel tegen weer en wind te beschermen en voldoet aan de daarvoor gestelde bouwtechnische regels.

2.2 Provinciaal beleid

2.2.1 Omgevingsvisie Drenthe

De Omgevingsvisie is hét strategische kader voor de ruimtelijk-economische ontwikkeling van Drenthe. De visie formuleert de belangen, ambities, rollen, verantwoordelijkheden en sturing van de provincie in het ruimtelijke domein.

De Omgevingsvisie beschrijft de ruimtelijk-economische ontwikkeling van Drenthe in de periode tot 2030, met in sommige gevallen een doorkijk naar de periode daarna. Als in de tekst wordt gesproken over ‘lange termijn’, betreft het de periode na 2030.

De Omgevingsvisie heeft voor de provincie vooral een interne binding. Dit betekent dat de provincie bij de uitoefening van haar taken aan de Omgevingsvisie gebonden is.

Missie

De missie van de provincie is het waarderen van de Drentse kernkwaliteiten en het ontwikkelen van een bruisend Drenthe, passend bij de kernkwaliteiten. Deze missie is ingegeven door wat inwoners, medeoverheden en maatschappelijke partners belangrijk vinden voor de toekomst van Drenthe. De kernkwaliteiten zijn samen met partners en de inwoners van Drenthe benoemd, te weten landschap, cultuurhistorie, aardkundige waarden, archeologie, rust en natuur.

Kernkwaliteiten

De kernkwaliteiten zijn de kwaliteiten die bijdragen aan de identiteit en aantrekkelijkheid van Drenthe. Samen met vertegenwoordigers van overheden, belangengroepen, marktpartijen en inwoners heeft de provincie de volgende kernkwaliteiten van Drenthe benoemd. De kernkwaliteiten zijn:

  • Rust, ruimte, natuur en landschap;
  • Oorspronkelijkheid;
  • Naoberschap;
  • Menselijke maat;
  • Veiligheid;
  • Kleinschaligheid (Drentse schaal).

Ruimtelijke ontwikkelingen

De provincie wil ontwikkelingen stimuleren die een bijdrage leveren aan de ruimtelijke kwaliteit. Deze kwaliteit zit voor de provincie in het zorgvuldig gebruikmaken van de ruimte, het behouden en waar mogelijk versterken van de kernkwaliteiten en het waarborgen van de kwaliteit van het milieu en de leefomgeving.

Hieronder volgen de delen uit de Omgevingsvisie die relevant zijn voor het voorliggende ruimtelijk initiatief.

Zorgvuldig ruimtegebruik

In Drenthe kunnen mensen nog ruimte beleven. Dat wil de provincie bewaken, ook wanneer er nieuwe ontwikkelingen zijn. Zorgvuldig ruimtegebruik is van provinciaal belang.

Milieu- en leefomgevingskwaliteit

De provincie streeft naar een gezonde en veilige leefomgeving voor mens, plant en dier. Het beschermen van de kwaliteit van milieu en leefomgeving is veelal op Europees en nationaal niveau geregeld. Daarbij zijn diverse taken en verantwoordelijkheden bij de provincies neergelegd. Deze taken, gericht op het beschermen van de kwaliteit van lucht, water en bodem en het verbeteren van de verkeersveiligheid, waterveiligheid en externe veiligheid, zijn daarmee van provinciaal belang.

Kaarten en doelstellingen

Op kaarten behorende bij de Omgevingsvisie Drenthe zijn de kernkwaliteiten nader weergegeven. Op relevante kaarten is het plangebied als volgt aangeduid:

Landschap

Het plangebied is gelegen binnen het landschap ‘Veenkoloniën’. Van provinciaal belang is de orthogonale samenhang tussen het systematische ontginningspatroon van grootschalige openheid met kenmerkende wijkenstructuur en de bebouwingslinten met daaruit opgaande percelen. Het bouwplan wordt binnen het bestaande bebouwingslint wordt geen afbreuk gedaan aan de kenmerkende structuur. De kernkwaliteit is niet in het geding.

Cultuurhistorie

Het beleid van de provincie Drenthe ten aanzien van cultuurhistorie is beschreven in de beleidsnota Cultuurhistorisch Kompas Drenthe. Het plangebied is gelegen binnen het gebied ‘Emmen en haar venen’.

Bepalend in dit gebied is de positie van Emmen als naoorlogse stad, in een veengebied dat vrij laat is ontgonnen en nog de concrete sporen toont van de machinale veenontginningen. Emmen, oorspronkelijk een esdorp op een uitloper van de Hondsrug, bezit rondom de oude kern een krans van woonwijken en industriegebieden, die representatief zijn voor de opeenvolgende fasen in het naoorlogse planningsdenken. Daarbuiten zijn in het gebied van het Amsterdamscheveld de verschillende facetten en fasen van de machinale veenontginning in één gebied zichtbaar. De zuidelijke strook langs de grens met Duitsland heeft een eigen karakter, gevormd door de randveenontginningen en hun wegdorpen en de esgehuchten. Samengevat is dit karakteristiek voor het geheel: de veelzijdigheid van ruimtelijke inrichting in fasen en in tijd, met structuren van esdorpen, veenontginningen, wegdorpen en naoorlogse planning; de verschillende zones die zich door hun autonome ontwikkeling sterk van elkaar onderscheiden.

Het generieke beleid 'respecteren' is verder van toepassing. Het is bedoeld om de bestaande cultuurhistorische samenhang, zoals die is vastgelegd in de hoofdstructuur, te borgen.

Archeologie

De inhoudelijke kaart Archeologie geeft een overzicht van de archeologische waarden en verwachtingen die de provincie van provinciaal belang achten. In gebieden of terreinen met een archeologische verwachting op de archeologiekaarten, wordt gestuurd op een goede uitvoering van archeologisch onderzoek. Niet voor alle bodemingrepen is archeologisch onderzoek vereist.

Dit hangt af van de omvang en aard van de ingreep, de waarde/verwachting van de locatie en het vrijstellingenbeleid zoals dat is uitgewerkt in de gemeentelijke archeologiekaarten. Het plangebied heeft een archeologische waarde. Dit wordt nader beschreven in hoofdstuk 4.

Aardkundige waarden

Aardkundige waarden die bijdragen aan het specifieke Drentse karakter wil de provincie behouden en, waar mogelijk, herstellen. Het provinciaal belang ligt in het behouden en, waar mogelijk, ontwikkelen van de kernkwaliteit aardkundige waarden. De provincie wil inhoud geven aan ruimtelijke kwaliteit, om de identiteit en aantrekkelijkheid van Drenthe te behouden en te versterken. Het doel is de archiefwaarde van de bodem te behouden en de landvormen, die karakteristiek zijn voor het Drentse landschap, te behouden en te versterken, als onderdeel van de kernkwaliteit oorspronkelijkheid.

Het plangebied is gelegen binnen een gebied met een generiek beschermingsniveau voor aardkundige waarden. In deze gebieden wil de provincie de lokale, aardkundige kenmerken voor de toekomst bewaren.

2.2.2 Provinciale omgevingsverordening

Provinciale Staten van Drenthe hebben de Provinciale omgevingsverordening Drenthe (POV) vastgesteld. In de omgevingsverordening is het perceel gelegen binnen een gebied aangeduid als 'Bestaand Stedelijk Gebied'. Binnen het Bestaand Stedelijk Gebied ligt de verantwoordelijkheid ten aanzien van woningbouw en voorzieningen primair bij de gemeente. De verordening geeft verder geen specifieke bepalingen voor percelen met deze aanduiding.

afbeelding "i_NL.IMRO.0114.Zaak152462023-V501_0014.png"

Fig. 2.9: Ligging Bestaand Stedelijk Gebied volgens de provinciale verordening

2.3 Rijksbeleid

2.3.1 Nationale Omgevingsvisie (NOVI)

De Nationale Omgevingsvisie (NOVI) biedt een duurzaam perspectief voor de Nederlandse leefomgeving. Hiermee kunnen we inspelen op de grote uitdagingen die voor ons liggen. De NOVI biedt een kader, geeft richting en maakt keuzes waar dat kan. Tegelijkertijd is er ruimte voor regionaal maatwerk en gebiedsgerichte uitwerking. Omdat de verantwoordelijkheid voor het omgevingsbeleid voor een groot deel bij provincies, gemeenten en waterschappen ligt, kunnen inhoudelijke keuzes in veel gevallen het beste regionaal worden gemaakt. Met de NOVI zet de Rijksoverheid een proces in gang waarmee keuzes voor onze leefomgeving sneller en beter gemaakt kunnen worden.

Aan de hand van een toekomstperspectief op 2050 brengt de NOVI de langetermijnvisie in beeld. Op nationale belangen wil het Rijk sturen en richting geven. Die komen samen in vier prioriteiten:

  • Ruimte voor klimaatadaptatie en energietransitie;
  • Duurzaam economisch groeipotentieel;
  • Sterke en gezonde steden en regio's;
  • Toekomstbestendige ontwikkeling van het landelijk gebied.

De druk op de fysieke leefomgeving in Nederland is zo groot, dat belangen soms botsen. Het streven vanuit de NOVI is combinaties te maken en win-win situaties te creëren. Soms zijn er scherpe keuzes nodig en moeten belangen worden afgewogen. Hiertoe gebruikt de NOVI drie afwegingsprincipes:

  • 1. 1. Combinaties van functies gaan voor enkelvoudige functies: In het verleden is scheiding van functies vaak te rigide gehanteerd. Met de NOVI wordt gezocht naar maximale combinatiemogelijkheden tussen functies, gericht op een efficiënt en zorgvuldig gebruik van de ruimte;
  • 2. 2. Kenmerken en identiteit van een gebied staan centraal: wat de optimale balans is tussen bescherming en ontwikkeling, tussen concurrentiekracht en leefbaarheid, verschilt van gebied tot gebied. Sommige opgaven en belangen wegen in het ene gebied zwaarder dan in het andere;
  • 3. 3. Afwentelen wordt voorkomen: het is van belang dat de leefomgeving zoveel mogelijk voorziet in mogelijkheden en behoeften van de huidige generatie van inwoners zonder dat dit ten koste gaat van die van toekomstige generaties.

Relatie tot het project

Wonen is één van de basisbehoeften van mensen. In de Nationale Omgevingsvisie wordt aangegeven dat iedereen in Nederland prettig moet kunnen wonen voor een redelijke prijs. Een woningvoorraad die aansluit op de huidige en toekomstige woonbehoefte van mensen is daarom van nationaal belang.

Het huidige woningtekort en de toename van het aantal inwoners en huishoudens vraagt een groei van de woningvoorraad (vooral in en bij de stedelijke regio’s) in een fijne, leefbare omgeving. Tussen 2019 en 2035 moet de woningvoorraad in Nederland met circa 1,1 miljoen woningen worden vergroot. De primaire verantwoordelijkheid voor de gebouwde omgeving, de woningvoorraad en de leefbaarheid ligt bij gemeenten en provincies. Het Rijk is systeemverantwoordelijk.

Het is de rol van het Rijk om de kaders te stellen, te stimuleren, eventueel te sanctioneren, waar nodig middelen ter beschikking te stellen – bijvoorbeeld via de huurtoeslag, hypotheekrenteaftrek of de regeling woningbouwimpuls voor gemeenten – en met gemeenten en provincies samen te werken om (bovenlokale, inclusief grensoverschrijdende) knelpunten op te lossen en realisatie van de nationale belangen te waarborgen.

De voorgenomen ontwikkeling voorziet in het realiseren van tien appartementen. In de regio Emmen/Klazienaveen is een grote vraag naar nieuwe woningen. Zoals is beschreven ligt de primaire verantwoordelijkheid voor de gebouwde omgeving en de woningvoorraad bij de gemeenten en provincies. De nieuwe appartementen voorzien in een actuele behoefte. Daarmee past het plan binnen de prioriteiten van de NOVI en kan geconcludeerd worden dat er geen sprake is van strijd met het rijksbeleid.

2.3.2 Ladder duurzame verstedelijking

De Ladder voor duurzame verstedelijking (hierna: Ladder) is een instrument voor efficiënt ruimtegebruik, met een motiveringsvereiste voor het bevoegd gezag als nieuwe stedelijke ontwikkelingen planologisch mogelijk worden gemaakt. Bij besluit van 28 augustus 2012 is de Ladder toegevoegd aan artikel 3.1.6 van het Besluit ruimtelijke ordening (Bro) en vervolgens op 1 oktober 2012 in werking getreden. Op 1 juli 2017 is het Bro gewijzigd, waarbij een nieuwe Laddersystematiek geldt.

De Ladder staat als instrument niet op zichzelf, maar geeft mede vorm aan de systeemverantwoordelijkheid van de minister van Infrastructuur en Milieu voor een goede ruimtelijke ordening.

Deze verantwoordelijkheid brengt met zich mee, dat de minister ervoor zorgt dat decentrale overheden over de juiste instrumenten kunnen beschikken voor een zorgvuldige benutting van de ruimte. Hieronder wordt begrepen het voorkomen van overprogrammering, het faciliteren van groei, het anticiperen op stagnatie en het leefbaar houden van krimpregio's.

De Ladder is onder andere van toepassing op woningbouwplannen die worden aangemerkt als nieuwe stedelijke ontwikkeling. Bij het bepalen óf en hoe de Ladder moet worden toegepast is de volgende vraag van belang: Is er sprake van een stedelijke ontwikkeling?

Of er sprake is van een stedelijke ontwikkeling wordt bepaald door de aard en omvang van de ontwikkeling, in relatie tot de omgeving. Momenteel is in jurisprudentie de lijn aanwezig dat een woningbouwproject vanaf twaalf woningen wordt aangemerkt als een stedelijke ontwikkeling. Voorliggend plan gaat uit van het realiseren van tien appartementen en daarmee is geen sprake van een stedelijke ontwikkeling.

In het kantoor-/woongebouw is naast tien appartementen ook een kantoorfunctie aanwezig. Het plan voorziet in het nieuw vestigen van een kantoorgebouw met een gebruiksoppervlakte van circa 350 m2. Gelet op de omvang is het plan niet aan te merken als een stedelijke ontwikkeling.

De Ladder is onder andere van toepassing op woningbouwplannen die worden aangemerkt als nieuwe stedelijke ontwikkeling. Nu het plan niet als stedelijke ontwikkeling is aan te merken kan de Laddertoets verder achterwege blijven.

Bovendien, is zoals in voorgaande woonvisie 'BuitengeWoon Thuis in Emmen' gebleken dat er voor Klazienaveen voldoende vraag is naar woningen. Wat betreft het gemeentelijk beleid kan gesteld worden dat wordt voldaan aan een kwalitatieve en kwantitatieve woningbehoefte.

Het project is niet in strijd met de Ladder voor duurzame verstedelijking.

2.4 Conclusie

De conclusie is dat het project niet in strijd is met het rijksbeleid. Het rijksbeleid werkt indirect door via het provinciaal beleid. Het provinciaal beleid vormt weer de input voor het gemeentelijk beleid. Voor het voorliggende project kan eveneens geconcludeerd worden dat het plan passend is in het provinciale beleid. Wat betreft het gemeentelijk beleid kan geconcludeerd worden dat hieraan wordt voldaan.

Hoofdstuk 3 Planbeschrijving

3.1 Ontstaansgeschiedenis

3.1.1 Kanalen en linten

Klazienaveen is een jong veendorp. Haar naam dankt ze aan Klaziena, de vrouw van W.A. Scholten. De familie Scholten was eigenaar van de venen ten oosten van Emmen.

afbeelding "i_NL.IMRO.0114.Zaak152462023-V501_0015.png"

Fig. 3.1: Klazienaveen, anno 1900

Toen rond 1900 de Verlengde Hoogeveense Vaart (nu het Van Echtenskanaal) werd doorgetrokken tot aan de Duitse grens kwam de vervening in dit gebied op volle toeren. En kreeg Klazienaveen de karakteristieke veenkoloniale ruimtelijke hoofdstructuur met de hoofdkanalen en de dwarsloten, ook wel wijken genoemd.

Een deel van de arbeidersbevolking volgde de vervening door de regio, anderen vestigden zich langs de gegraven kanalen en wijken en probeerden een bestaan op te bouwen in de turfwinning, turftransport, turf verwerkende industrie of in de landbouw. Ter plekke van de dwarsverbindingen op het Van Echtenskanaal, tussen de Dordsebrug en de Trambrug / Scholtenskanaal verdichtte de lintbebouwing en concentreerde zich de detailhandel en zo ontstond het centrum van Klazienaveen.

3.1.2 Woonbuurten

Tot begin jaren 60 van de vorige eeuw kon binnen de veenkoloniale ruimtelijk opzet met de lange lintbebouwing de uitbreiding van het dorp gerealiseerd worden. Door de groei van de bevolking en de bedrijvigheid in de jaren daarna was de behoefte aan nieuwe woningen groot en werden er planmatige woonbuurten achter de historische veenkoloniale linten aangelegd.

Grofweg is het huidige Klazienaveen op te delen in vier kwadranten; Sterrenbuurt, Molenbuurt, Noordwest (Kruidenveld) en Zuidwest. De veenkoloniale ontwikkelingsassen het Van Echtenskanaal en de Dordsedijk/ Brugstraat maken de verdeling.

afbeelding "i_NL.IMRO.0114.Zaak152462023-V501_0016.png"

Fig. 3.2: Klazienaveen en haar kwadranten, met een aanduiding van het plangebied

3.2 Algemene planbeschrijving

Als gevolg van te slopen bebouwing ontstaat er in het plangebied ruimte voor nieuwbouw van een woongebouw met tien appartementen met een kleinschalig kantoorgebouw. Het ontwerp (her)kent vier verschillende volumes (‘huizen’) met wisselende bouwhoogten, kapvormen en kleur van het metselwerk, die op elkaar zijn afgestemd. Bij het ontwerp is getracht zoveel als mogelijk aansluiting te zoeken op de bestaande omliggende lintbebouwing, onder andere door naar de omgeving toe delen van het gebouw lager te maken.

Het woongebouw wordt via het Van Echtenskanaal ontsloten (hoofdingang appartementen). Het kantoorgebouw zal via een ingang aan de Brugstraat toegankelijk zijn. Achter het gebouw is gelegenheid voor parkeren op eigen terrein. In totaal zijn elf parkeerplaatsen voor de bewoners van het woongebouw aanwezig. Deze parkeerplaatsen worden via de bestaande parallelweg langs de Brugstraat ontsloten.

Tussen de bebouwing en het openbaar gebied (Van Echtenskanaal NZ en Brugstraat) worden groenstructuren gerealiseerd.

3.2.1 Stedenbouwkundige hoofdstructuur

Het plangebied van dit project is, uitgaande van de indeling in woonbuurten, gelegen in het kwadrant ‘Noordwest’. De stedenbouwkundige hoofdstructuur is aan te merken als lintbebouwing. De oude lintbebouwing loopt veelal nog door tot in de dorpen en geeft een herkenbaar houvast aan de oorspronkelijke structuur. De samenhang in het lint is met name te vinden in de ritmiek van bouwmassa’s van één tot twee lagen met kap. Langs het lint Van Echtenskanaal - Brugstraat - Dordsedijk bevinden zich voornamelijk vrijstaande woningen van één bouwlaag met kap. Af en toe komen hogere woningen voor, alsmede twee-onder-een-kapwoningen. De woningen worden her en der afgewisseld met andere functies, zoals bedrijvigheid en maatschappelijke functies. De rooilijn is verspringend. De kaprichting is overwegend haaks op de hoofdontsluiting.

3.2.1.1 Huidige situatie

Het plangebied is gelegen aan de westrand van het centrumgebied van Klazienaveen, ten noordwesten van de Ovonde. De hoeklocatie is gelegen aan de invalsweg de Brugstraat en aan het Van Echtenskanaal NZ. Ten westen en ten noorden van het plangebied is lintbebouwing met woonbestemmingen gelegen. In oostelijke richting is bebouwing van het centrumgebied gelegen, waaronder de Dordsebrugflat tegenover het plangebied. In de commerciële plint van dit gebouw is fysiopraktijk Klazienaveen, een pizzeria en een winkel gelegen. Ter hoogte van de zebrapaden is een barbiershop gevestigd.

Op het perceel aan de Van Echtenskanaal NZ 130 was een voormalige sportschool met bovenwoning gevestigd. Deze is door een calamiteit (brand) tenietgegaan en inmiddels gesloopt. Aan de Brugstraat 1 in Klazienaveen deed een voormalige woning lange tijd dienst als een kantoorgebouw. Het ICT-bedrijf is paar jaar geleden verhuisd en het pand stond sindsdien geruime tijd leeg. Ook dit pand is inmiddels gesloopt.

afbeelding "i_NL.IMRO.0114.Zaak152462023-V501_0017.png"

Fig. 3.3: Een weergave van het plangebied, anno 2019 (met zicht op de voormalige sportschool)

afbeelding "i_NL.IMRO.0114.Zaak152462023-V501_0018.png"

Fig. 3.4: Een weergave van het plangebied, anno 2023 (inmiddels is het pand Brugstraat 1 gesloopt)

Ten noorden van het plangebied aan de Brugstraat is lintbebouwing aanwezig die voorziet in woningen met één bouwlaag met een kap. Ten westen van het plangebied aan de Van Echtenskanaal is lintbebouwing met woningen van twee bouwlagen met een kap aanwezig.

afbeelding "i_NL.IMRO.0114.Zaak152462023-V501_0019.png"

Fig. 3.5: Een weergave van het plangebied in de directe omgeving van omliggende (lint)bebouwing

Het plangebied van de twee kavels (Van Echtenskanaal NZ 130 en Brugstraat 1) heeft een oppervlakte van 1260 m2. Daarin stond voorheen bebouwing met een oppervlakte van 503 m2. Onderstaande figuur 3.6 is een weergave van de bestaande situatie. De bebouwing op deze tekening is inmiddels gesloopt.

afbeelding "i_NL.IMRO.0114.Zaak152462023-V501_0020.png"

Fig. 3.6: Situatietekening met de contouren van de voormalige bebouwing

3.2.1.2 Voorgenomen ontwikkeling

Het bouwplan voorziet in het realiseren van een woongebouw met tien appartementen met een kleinschalig kantoorgebouw. Het ontwerp (her)kent vier verschillende volumes (‘huizen’) met wisselende bouwhoogten, kapvormen en kleur van het metselwerk, die op elkaar zijn afgestemd. Er is na het bestuurlijk besluit voor dit plan in samenspraak met de gemeente en de welstandscommissie gekeken naar een zo’n goed mogelijke inpassing in de omgeving en op deze locatie. Onderstaand een impressie van het bouwplan in relatie tot de directe omgeving.

afbeelding "i_NL.IMRO.0114.Zaak152462023-V501_0021.png"

Fig. 3.7: 3-D impressies van het nieuwe woongebouw in relatie tot de direct naastgelegen woningen

Op onderstaande verbeeldingen is te zien dat de contouren van de nieuwe ontwikkeling afwijken van de voormalige bebouwing op de twee percelen. In de bestaande situatie was er sprake van 503 m2 aan bebouwing en in het nieuwe plan bedraagt de bebouwing van het hoofdgebouw 483 m2.

afbeelding "i_NL.IMRO.0114.Zaak152462023-V501_0022.png"

Fig. 3.8: Tekeningen van voormalige bebouwing in het plangebied

afbeelding "i_NL.IMRO.0114.Zaak152462023-V501_0023.png"

Fig. 3.8: Tekeningen van de nieuwe bebouwing over de voormalige bebouwing heen geprojecteerd

Geconcludeerd wordt dat de oppervlakte is verminderd, maar dat het gebouw ten opzichte van de voormalige bebouwing naar voren is gekomen. Bij de nieuwe positionering van het gebouw is zoveel als mogelijk aansluiting gezocht bij de aanwezige voorgevelrooilijnen. In de nieuwe situatie is vanuit stedenbouwkundig oogpunt gekeken naar de voorgevelrooilijn van de bestaande lintbebouwing. Aan de westzijde is de rooilijn van de bestaande woningen aan de Van Echtenskanaal opgepakt. Aan de noordzijde is het gebouw trapsgewijs opgebouwd, waarbij de nieuwe bebouwing aan de noordzijde terug ligt ten opzichte van de rooilijn van de bestaande woningen aan de Brugstraat.

afbeelding "i_NL.IMRO.0114.Zaak152462023-V501_0024.png"

Fig. 3.10: Situatietekening met de nieuwe bebouwing en erfinrichting van het plangebied

Aan de noordzijde van het beoogde woongebouw hebben de naastgelegen woningen een bouwlaag met kap. Het nieuwe gebouw heeft aan de noordzijde aan de Brugstraat twee bouwlagen met een kap. Het nieuwe gebouw is daarmee ten opzichte van de naastgelegen lintbebouwing trapsgewijs opgebouwd (zie figuur 3.11). De trapsgewijze opbouw van het hoofdgebouw loopt aan de westzijde af naar drie bouwlagen en sluit aan op de naastgelegen woning(en) met twee bouwlagen en een (langs)kap aan de Van Echtenskanaal NZ (zie figuur 3.12). Daarmee is het huidige ontwerp zorgvuldig tot stand gekomen en is getracht zoveel als mogelijk aansluiting te zoeken op de bestaande omliggende lintbebouwing, onder andere door naar de omgeving toe delen van het gebouw lager te maken.

afbeelding "i_NL.IMRO.0114.Zaak152462023-V501_0025.png"

Fig. 3.11: Weergave vanaf de zijde aan de van de Brugstraat met een trapsgewijze aansluiting op de naastgelegen (lint)bebouwing

afbeelding "i_NL.IMRO.0114.Zaak152462023-V501_0026.png"

Fig. 3.12: Weergave vanaf de zijde aan de van Echtenskanaal NZ met een trapsgewijze aansluiting op de naastgelegen (lint)bebouwing

De hoeklocatie van het plangebied aan de Brugstraat en Van Echtenskanaal NZ vraagt om een accent en met trapsgewijze opbouw tot vier bouwlagen doet deze hoek mee in het accentueren van het centrumgebied aan de Ovonde en langs de doorgaande verkeersroutes. Het nieuwe hoofdgebouw met architectonisch hoogwaardige gevels en een prominente hoek kan hiermee samen met het Aldi-(woon)gebouw als uithangbord voor het centrum gaan functioneren. Een vierde bouwlaag op de hoek van het gebouw als gevolg van een trapsgewijze opbouw is op deze locatie te verdragen omdat het gebouw als tegenhanger dient van de aan de overzijde van het kanaal te ontwikkelen woon-/winkelgebouw 'Bruin Goud'. Ook dat ontwerp laat een dergelijke trapsgewijze opbouw met een ‘hoogtepunt’ zien (van vijf bouwlagen) grenzend aan de Ovonde.

Samen met het Aldi-(woon)gebouw ontstaan er twee beeldbepalende gebouwen aan de twee zijden van de Ovonde, langs de doorgaande verkeersroute. Hiermee ontstaat een markering van het centrum en de entree van Klazienaveen.

Onderstaande figuren bieden een impressie van het hoofdgebouw zoals dat zichtbaar zal zijn anaf de Ovonde in noordwestelijke richting.

afbeelding "i_NL.IMRO.0114.Zaak152462023-V501_0027.png"

Fig. 3.13: 3-D impressies van het nieuwe woongebouw met zicht vanaf de Ovonde met de prominente hoek met een vierde bouwlaag op het gebouw

afbeelding "i_NL.IMRO.0114.Zaak152462023-V501_0028.png"

Fig. 3.14: Geveltekeningen van het gebouw

De hoofdingang van het woongebouw is gelegen aan het Van Echtenskanaal NZ. De toegang is ter hoogte van het zebrapad gelegen. Via de hoofdingang is het woongebouw (integraal) toegankelijk via een gemeenschappelijke verkeersruimte. In het centrale gedeelte is een stijggedeelte in de vorm van een trappenhuis en een lift. Hierdoor is sprake van een toegankelijk woongebouw, bijvoorbeeld voor ouderen of mensen met een functiebeperking. Via deze gemeenschappelijk verkeersruimte zijn de achter het gebouw gelegen parkeervoorzieningen en de bergingencomplex bereikbaar.

Twee appartementen zijn via een eigen toegang (vanaf het maaiveld) bereikbaar. Het betreffen het grondgebonden appartement aan de westzijde van het gebouw en het appartement aan de noordzijde van het gebouw. Het kantoorgebouw heeft een eigen toegang. De toegang van het kantoor is in de oostgevel gelegen en aan de zijde van de Brugstraat, ter hoogte van het zebrapad.

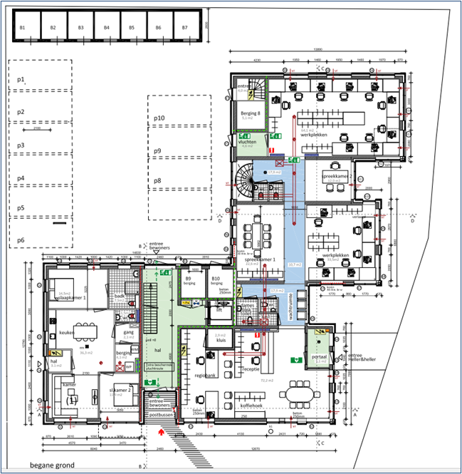
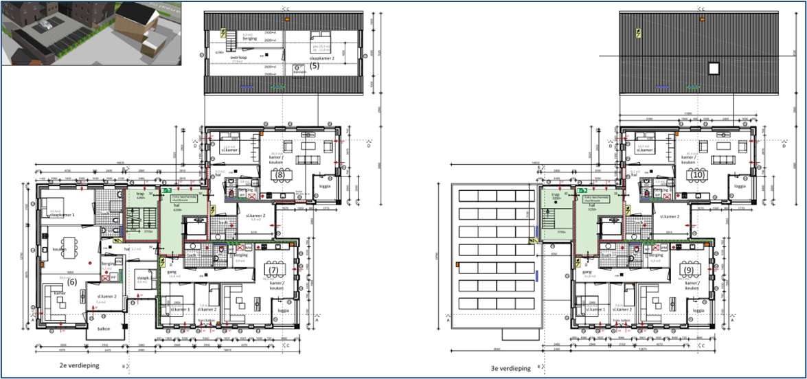
Het woongebouw heeft op begane grond aan de westzijde één grondgebonden appartement en op de verdiepingen de overige negen appartementen. De appartementen op de verdiepingen hebben een balkon en/of een loggia. De balkons en loggia’s zijn gericht aan het Van Echtenskanaal NZ en de Brugstraat, waardoor er geen sprake is van zicht op nabijgelegen woonpercelen en het eventuele aspect privacy van de bewoners van de bestaande naastgelegen woningen niet in het geding is.

afbeelding "i_NL.IMRO.0114.Zaak152462023-V501_0029.png"

Fig. 3.15: Plattegrondtekening van de begane grondvloer met de erfinrichting op het perceel

afbeelding "i_NL.IMRO.0114.Zaak152462023-V501_0030.png"

Fig. 3.16: Plattegrondtekeningen van het gebouw

afbeelding "i_NL.IMRO.0114.Zaak152462023-V501_0031.png"

Fig. 3.17: Plattegrondtekeningen van het gebouw

3.2.2 Verkeersstructuur

Bereikbaarheid en ontsluiting

Klazienaveen is gelegen ten zuidoosten van Emmen. Net ten noorden van Klazienaveen loopt de snelweg A37, tussen Hoogeveen en de grens met Duitsland. Het plangebied is gelegen op de hoek aan het Van Echtenskanaal NZ en de Brugstraat te Klazienaveen. De Brugstraat betreft een noord-zuidgerichte doorgaande weg door Klazienaveen. Even ten noorden van het plangebied gaat de Brugstraat in westelijke richting over in de Antares, welke uitkomt op de N862. Via de N862 is de snelweg A37 te bereiken.

Van Echtenskanaal NZ is een doorgaande weg die evenwijdig aan en ten noorden van de Hoogeveense Vaart is gelegen. Deze verbindingsweg loopt door het centrumgebied van Klazienaveen en verbindt het dorp in westelijke richting het dorp met het dorp Erica. In oostelijke richting verbindt het Van Echtenskanaal NZ het dorp Klazienaveen met het dorp Zwartemeer.

De bereikbaarheid en ontsluiting van het plangebied is daarmee goed te noemen. Gezien het karakter van het Van Echtenskanaal NZ en de Brugstraat (doorgaande wegen door Klazienaveen) mag ervan worden uitgegaan dat deze wegen de verkeersafwikkeling van het nieuwe gebouw goed aankan.

Voor het nieuwbouwplan is gekozen voor een ontsluiting via de bestaande parallelweg langs de Brugstraat. Het betreft in feite de bestaande ontsluiting van het voormalige pand Brugstraat 1. Via deze parallelweg wordt het parkeerterrein achter het woongebouw ontsloten. Deze parallelweg gaat in zuidelijke richting over in een fiets- en voetpad dat langs het gebouw loopt in de richting van het Van Echtenskanaal.

Parkeren

In het plan worden op eigen terrein 11 parkeerplaatsen gerealiseerd. Daarmee heeft elk appartement een eigen parkeerplaats. Verder is in het plangebied één bezoekersparkeerplaats opgenomen. De parkeerplaatsen zijn achter het gebouw gelegen en worden daarmee aan het zicht vanaf het openbaar gebied onttrokken. Het parkeerterrein zal worden afgesloten en enkel voor de bewoners toegankelijk zijn.

In paragraaf 2.1.6 is nadrukkelijk ingegaan op het aantal parkeerplaatsen voor dit project. Voor dit project is uitgegaan van 14 parkeerplaatsen. In het plangebied zijn in totaal 11 parkeerplaatsen opgenomen. Deze parkeerplaatsen zijn voor de bewoners van de appartementen bestemd. In het plangebied is onvoldoende ruimte beschikbaar om daar de totale parkeerbehoefte te realiseren. In het plan is zorgvuldig rekening gehouden met het beeldkwaliteit van de gebouw, waarbij expliciet gekozen is voor een ‘groene’ aanblik (paragraaf 3.4 Groenstructuur), waardoor parkeren voor het gebouw (op eigen perceel) uitgesloten is. Parkeren langs de parallelweg is uitgesloten.

Het parkeren voor de overige drie parkeerplaatsen is voorzien in de openbare ruimte. De medewerkers en bezoekers van het kantoorgebouw kunnen gebruiken maken van de parkeervoorzieningen in het centrum, voorzover zij niet op de fiets of met het openbaar vervoer komen. Binnen de 100 meter van het plangebied zijn meerdere openbare parkeerplaatsen aanwezig. Concreet gaat het om een parkeerterrein ter hoogte van de Dordsebrugflat en fysiopraktijk Klazienaveen, een parkeerterrein achter en voor de Versmarkt, een parkeerterrein ten oosten van de Ovonde en een parkeerkelder onder Het Schip.

Bergingencomplex en afvalcontainer

Elk appartement heeft een (verplichte) buitenberging. Deze buitenberging is tevens vanuit het Bouwbesluit 2012 verplicht gesteld teneinde fietsen en scootmobiels tegen weer en wind te beschermen en voldoet aan de daarvoor gestelde bouwtechnische regels. Achter het woongebouw wordt ter hoogte van de parkeerplaatsen in de noordwestelijke hoek een bergingencomplex met zeven bergingen gerealiseerd. In het hoofdgebouw worden drie (inpandige) bergingen gerealiseerd (zie figuren 3.10 en 3.15).

In de noordoostelijke hoek van het plangebied wordt, grezend aan de parallelweg en voor het hekwerk dat het parkeerterrein afsluit, een ondergronds vuilcontainers voor de bewoners van het woongebouw gerealiseerd (zie figuren 3.10).

3.2.3 Groenstructuur

Groen in stedelijke omgeving verbetert het milieu, zorgt voor een rijke biodiversiteit, vermindert luchtvervuiling, zorgt voor waterberging, dempt geluidshinder en verkoelt in warme periode (voorkomt hittestress). Groen is essentieel voor een klimaatbestendige en duurzame omgeving. Ook draagt het groen bij aan een prettig woon- en leefklimaat.

Tussen de bebouwing en het openbaar gebied (Van Echtenskanaal NZ en Brugstraat) worden groenstructuren gerealiseerd. De ruimte voor het hoofdgebouw heeft een eenvormig vormgegeven (groen)zone. Dit groen is niet in eigendom van de bewoners en wordt niet als (voor)tuinen door de bewoners gebruikt. In de groenzone is ruimte voor groen aanplant, zoals hagen, planten en tevens enkele bomen. In het plangebied worden de perceelafscheidingen met naastgelegen woningen voorzien van groene afscheidingen zoals hagen.

Onderstaande figuur 3.18 biedt een weergave van de situatietekening waarin de verkeers- en groenstructuur in het plangebied zijn weergegeven.

afbeelding "i_NL.IMRO.0114.Zaak152462023-V501_0032.png"

Fig. 3.18: Erfinrichting- en situatietekening van het plangebied

Hoofdstuk 4 Onderzoeken

4.1 Archeologie en monumenten

4.1.1 Algemeen

De gemeente Emmen heeft archeologiebeleid vastgesteld, d.d. 30 mei 2013. Hiervoor is een archeologische beleidsadvieskaart gemaakt met daarbij een rapport, dit rapport dient als toelichting op de kaart. Het doel van deze documenten is om aan te geven wat de kern vormt van het archeologiebeleid en waar de beleidskeuzes zijn gemaakt. De verschillende archeologische waarden en verwachtingen en de maatregelen die daaraan zijn gekoppeld zijn in de gemeentelijke archeologische beleidsadvieskaart vertaald naar diverse categorieën 'Waarde - Archeologie' in het bestemmingsplan.

Met de vertaling is op eenvoudige wijze voor het gehele gebied van de gemeente Emmen in beeld gebracht of archeologische waarden in het geding zijn of kunnen zijn en zo ja, op welke manier daarmee dient te worden omgegaan. Onderstaande tabel geeft de onderverdeling van de vier gemaakte categorieën weer.

afbeelding "i_NL.IMRO.0114.Zaak152462023-V501_0033.png"

Fig. 4.1: Onderverdeling van categorieën archeologische waarden

Deze beleidskeuzes zijn vertaald in dubbelbestemmingen. Per archeologische kwaliteit zijn planregels opgenomen voor de te bebouwen oppervlakte en een omgevingsvergunningsstelsel voor het uitvoeren van werken, geen bouwwerk zijnde, of van werkzaamheden. De maatvoering voor afwijking is afhankelijk van de te verwachten waarden of verwachtingen en de uitkomsten van archeologisch onderzoek.

4.1.2 Archeologische waarden in het plangebied

Het plangebied is gelegen in het vigerend (facet)bestemmingsplan ‘Emmen, Archeologie’ waar het plangebied een dubbelbestemming ‘Waarde – Archeologie 4’ heeft. De voor Waarde - Archeologie 4 aangewezen gronden zijn, behalve voor de andere daar voorkomende bestemming(en), mede bestemd voor terreinen van middelhoge of hoge archeologische verwachtingen en bescherming en veiligstelling van de vastgestelde archeologische waarden. Voor gebieden aangeduid met ‘Waarde - Archeologie 4’ is algemeen aanvaard dat een minimumoppervlak van 1000 m2 en een bouwvoordiepte van 30 cm. (+10 cm) geldt voor de onderzoeksplicht bij bodemverstoringen.

De werkzaamheden die gaan plaatsvinden in het plangebied houden in dat er sloop- en bouwwerkzaamheden gaan plaatsvinden ten behoeve van de nieuwbouw van een woongebouw met tien appartementen met een kleinschalig kantoorgebouw.

De omvang van het plangebied bedraagt 1260 m2. In de bestaande situatie is sprake van volledig verhard terrein en voormalige bebouwing bij het voormalige sportschool en winkel-/woonpand. In de nieuwe situatie wordt er een woongebouw met kantoorfunctie met een bergingencomplex gerealiseerd. Naast bebouwing worden parkeerplaatsen en erfverharding aangelegd. De gezamenlijke (erf)verharding in het plangebied bedraagt circa 922 m2. Er is derhalve geen sprake van een toename van verhard oppervlak. In vergelijking met de bestaande situatie neemt de oppervlakte van het verhard terrein af met circa 338 m2.

De huidige bebouwing in het plangebied bedraagt circa 503 m2. Deze gronden zijn reeds ten tijde van de bouwwerkzaamheden dieper dan 30 cm verstoort. Als gevolg van recente sloopwerkzaamheden zijn de gronden ter plaatse opnieuw verstoort omdat de fundamenten van deze bebouwing zijn verwijderd. Ten tijde van die graafwerkzaamheden is recent de nieuwe bouwput direct uitgegraven. Deze bouwput is dieper dan 30 cm. Onderstaande weergave laat zien dat de gegraven bouwput in het plangebied 611 m2 bedraagt. De verbeelding rechtsboven van figuur 4.2 laat zien dat de contouren van de gegraven bouwput een groot deel van de bestaande voetprint van de oorspronkelijke bebouwing beslaat. De verbeelding rechtsonder van figuur 4.2 laat zien dat in het plangebied de bodemverstoring in het plangebied – dieper dan 30 cm. – na de sloopwerkzaamheden inclusief de gegraven bouwput 846 m2 bedraagt. De bodemingrepen in het plangebied blijven daarmee onder de onderzoeksgrens van 1000 m2.

afbeelding "i_NL.IMRO.0114.Zaak152462023-V501_0034.png"

Fig 4.2: Weergave van vierkante meters bebouwing, te graven bouwput en bodemverstoring in het plangebied

In het plan zal een enkele tot maximaal vier bomen geplant kunnen gaan worden in de ‘groenzone’ tussen de bebouwing en het openbaar gebied. De bodemingrepen ten behoeve daarvan zullen dieper zijn dan 30 cm, waarbij de oppervlakte beperkt maximaal 2 m2 (bij vier bomen). Het aanleggen van het parkeerterrein en overige erfverharding zal circa 76 m2 bedragen, waarbij de bodemingrepen (zandcunet) minder dan 30 cm diep zullen zijn.

Voor de overige gronden in het plangebied blijven de archeologische lagen onverstoord. Om de hiervoor genoemde redenen is archeologisch onderzoek voor het voorliggende bouwplan niet nodig.

4.1.3 Archeologische monumenten

Binnen het plangebied liggen geen (beschermde) archeologische monumenten.

4.1.4 Cultuurhistorie

Cultuurhistorie

De regering heeft in het Besluit ruimtelijke ordening (Bro) vastgelegd dat gemeenten vanaf 1 januari 2012 in hun bestemmingsplannen rekening moeten houden met aanwezige cultuurhistorische waarden. Burgers krijgen hiermee het recht om bij de planning van bouwwerkzaamheden aan te geven of er cultureel erfgoed wordt geraakt.

Onderzoek en conclusies

Op de erfgoedkaart is het plangebied (aanduiding ‘bijzondere gebouwen en objecten’) en de omgeving uit het oogpunt van historische stedenbouwkunde van belang. Bij historische bouwkunde gaat het niet om één gebouw, maar om dorpen of wijken waar gebouwen duidelijk met elkaar te maken hebben. Dit is in de hele gemeente te vinden. Voorbeelden zijn de wijken in Emmen, de lintdorpen zoals Klazienaveen en de esdorpen zoals Weerdinge. De historische bouwkunde wil de gemeente graag herkenbaar houden. Nieuwe ontwikkelingen worden zo goed mogelijk aangesloten op de bestaande omgeving. Het plangebied is aangeduid als 'lintstructuur, periode 1850-1940'. De maatregel die daarbij hoort is 'herkenbaar houden'.

De Brugstraat wordt eveneens vermeld als 'historische infrastructuur'. De Brugstraat is daarmee ook aangewezen voor de maatregel 'herkenbaar houden'. Ten aanzien van 'lintstructuur' vermeldt de erfgoednota het volgende: 'lintstructuur met een vrij dichte verkavelingsstructuur, aangelegd na 1900. Het lint vormt een belangrijke structuur van het dorp, samen met het lint langs het kanaal. Het lint is stedenbouwkundig zeer waardevol vanwege deze hoofdstructuur. Architectonisch is het minder waardevol omdat de bebouwing uit diverse bouwperioden komt en her en der ook nieuwe ingrepen zijn gedaan. Het is wel een zeer kenmerkende structuur voor de gemeente Emmen en daarmee heeft het enige zeldzaamheid in Nederland'.

De erfgoednota geeft aan dat bij nieuwe ontwikkelingen wordt geprobeerd om deze zo goed mogelijk bij de bestaande omgeving aan te laten sluiten. Het plangebied is aangeduid als 'lintstructuur, periode 1850-1940'. De maatregel die daarbij hoort is 'herkenbaar houden'.

Het voormalig gebouw op de locatie Van Echtenskanaal NZ 130 is een aangeduid als ‘bijzonder gebouw en object’ (een beeldbepalend bouwwerk), echter is het gebouw als gevolg van een calamiteit (brand) tenietgegaan en inmiddels gesloopt.

Het ontwerp is zorgvuldig tot stand gekomen en er is getracht zoveel als mogelijk aansluiting te zoeken op de bestaande omliggende lintbebouwing, onder andere door naar de omgeving toe delen van het gebouw lager te maken.

afbeelding "i_NL.IMRO.0114.Zaak152462023-V501_0035.png"

Fig 4.3: Een weergave van de Cultuurhistorische Waardenkaart van de gemeente Emmen, met daarop het plangebied aangeduid in het kader

Monumenten

Beschermde monumenten worden gekenmerkt door een samenhangend en gaaf geheel van architectonische stijlkenmerken. Een monument kan representatief zijn voor een bepaalde bouwstijl, maar kan ook een rijke bouwgeschiedenis hebben met verwijzingen naar verschillende bouwstijlen. Voor zover de bouwgeschiedenis niet duidelijk afleesbaar is, kan zij door bouwhistorisch onderzoek aan het licht komen. Monumenten worden in hoge mate gewaardeerd om hun architectuurhistorische kwaliteit, waardoor zij belangrijk bijdragen aan de kwaliteit en de identiteit van hun omgeving. Een bouwplan voor een monument wordt getoetst aan het monumentenbeleid.

Richtinggevend is hiervoor de redengevende omschrijving van het monument. Naast de toetsing aan het monumentenbeleid dat gericht is op het behouden van de historische kenmerken van het monument wordt het bouwplan voor wat betreft de welstandsaspecten getoetst aan de onderstaande criteria:

  • toevoegingen aan, op of bij monumenten worden op herkenbare wijze vormgegeven. Hierbij vormen de historische stijlkenmerken van het monument de inspiratiebron;
  • er is aandacht voor zorgvuldige detaillering en materiaalkeuze.


Het plangebied kent geen monumenten.

4.1.5 Conclusie

Op basis van het vigerend bestemmingsplan is archeologisch onderzoek nodig bij ingrepen groter dan 1.000 m2 en dieper dan 30 centimeter. De bodemverstoring in het plangebied dieper dan 30 cm, maar bedraagt circa 846 m2 en blijft daarmee onder de onderzoeksgrens van 1000 m2 (zie figuur 4.2).

Het plangebied kent geen monumenten of archeologische monumenten. Vanuit archeologie en cultuurhistorie zijn er geen belemmeringen voor uitvoering van het gewenste ontwikkeling.

Zorgplicht

De wettelijke meldingsplicht conform de Erfgoedwet blijft van kracht. Dit houdt in dat mochten er tijdens de graafwerkzaamheden toch archeologische resten worden gevonden, de initiatiefnemer dit onmiddellijk dient te melden bij de gemeentelijke archeoloog.

4.2 Ecologie

De Wet natuurbescherming (Wnb) is in werking getreden op 1 januari 2017. De provincie is bij de Wnb het bevoegd gezag voor de toetsing van werkzaamheden en handelingen bij Natura 2000-gebieden en dier- en plantensoorten. Het Rijk blijft bevoegd gezag bij ruimtelijke ingrepen met grote nationale belangen. Voor gemeenten geldt dat zij het bevoegd gezag zijn voor omgevingsvergunningen.

4.2.1 Gebiedsbescherming

In de Wnb is de bescherming van specifieke natuurgebieden geregeld. Het betreft de Natura 2000-gebieden, die een internationale bescherming genieten. Plannen en projecten met negatieve effecten op deze gebieden zijn vergunningplichtig. Relevant daarbij is dat de Wnb een externe werking kent. Van externe werking is sprake als activiteiten buiten een Natura 2000-gebied van invloed zijn op de natuurwaarden in een Natura 2000-gebied. Per Natura 2000-gebied zijn instandhoudingsdoelen voor soorten en vegetatietypen opgesteld.

Het Natuurnetwerk Nederland (NNN) is een samenhangend netwerk van bestaande en nog te ontwikkelen belangrijke natuurgebieden in Nederland en vormt de basis voor het natuurbeleid. Ten aanzien van ontwikkelingen binnen het NNN geldt het 'nee, tenzij-principe'. Het NNN is als beleidsdoel opgenomen in de Structuurvisie Infrastructuur en Ruimte. De provincies zijn verantwoordelijk voor de begrenzing, ontwikkeling en bescherming van het NNN. De begrenzing en ruimtelijke bescherming van het NNN is voor de provincie Drenthe uitgewerkt in de Provinciale Omgevingsvisie en de bijbehorende Provinciale Omgevingsverordening.

4.2.2 Soortenbescherming

Het uitgangspunt van de Wnb is dat er geen (opzettelijke) schade mag worden gedaan aan beschermde dieren of planten, tenzij dit uitdrukkelijk is toegestaan. De soortenbescherming binnen de Wnb is daarbij opgedeeld in drie beschermingsregimes: Vogelrichtlijnsoorten, Habitatrichtlijnsoorten en andere soorten. Bij beoordeling van de toelaatbaarheid van bouwwerken en/of andere activiteiten moet rekening worden gehouden met de mogelijke aanwezigheid van te beschermen dier- en plantensoorten.

Er dient een ontheffing op grond van artikel 3.3, 3.8 en/of 3.10 Wnb te worden aangevraagd voor een (bouw)werkzaamheid of activiteit indien het volgende van toepassing is:

  • uit gegevens of onderzoek blijkt dat er sprake is van verstoring of doden van (een) beschermde soort(en);
  • het bouwwerk en/of de activiteit veroorzaakt beschadiging of vernieling van voortplanting- of rustplaatsen van dieren, danwel ontworteling of vernieling van plantensoorten;
  • er kan geen gebruik gemaakt worden van een vrijstelling op grond van de Wet natuurbescherming;
  • er kan niet gewerkt worden volgens een goedgekeurde gedragscode.

4.2.3 Houtopstanden

In de Wnb is de bescherming van houtopstanden buiten de, door de gemeenteraad vastgestelde, bebouwde kom geregeld. Doel is de instandhouding van het bosareaal. In de Provinciale Omgevingsverordening van de provincie Drenthe is geregeld hoe een kapmelding moet worden ingediend, waaraan herbeplanting moet voldoen en wanneer ontheffing van de herbeplantingsplicht kan worden verleend.

Voor houtopstanden binnen de bebouwde kom geldt de Bomenverordening gemeente Emmen 2011. In het bijbehorende bomenregister zijn de monumentale en waardevolle bomen en waardevolle houtopstanden vastgelegd. Zonder ontheffing is het verboden deze te kappen.

4.2.4 Natuurwaarden in het terrein
4.2.4.1 Gebiedsbescherming

Het plangebied ligt niet in of grenst niet aan een in het kader van de Wnb beschermd gebied. Het meest nabijgelegen gebied beschermd middels de Wnb betreft het Natura 2000-gebied 'Bargerveen', wat is gelegen op een afstand van circa 3 kilometer ten zuidoosten van het plangebied. Het meest nabijgelegen NNN-gebied ligt op circa 1,1 kilometer ten noorden van het plangebied.

Door Fons Rensen zijn Aerius-berekeningen (versie 26 oktober 2023) gemaakt ten behoeve van het woningbouwplan voor de aanleg- en gebruiksfase. De berekeningen zijn opgenomen in Bijlage 1 bij deze ruimtelijke onderbouwing. De resultaten van de berekening bedragen 0,00 mol/ha/jaar. Er is daarmee geen sprake van een significante toename stikstofdepositie op Natura 2000 gebied Bargerveen.

4.2.4.2 Soortenbescherming

De voormalige sportschool met bovenwoning en naastgelegen woon-/winkelpand zijn reeds gesloopt. Om tot een conclusie te kunnen komen dat als gevolg van de voorgenomen bouw- en aanlegwerkzaamheden geen sprake is van significante aantasting van ecologische waarden in het plangebied is een Ecologisch Quickscan uitgevoerd.

Door Alcedo Natuurprojecten is een Ecologisch Quickscan uitgevoerd. Het rapport 'Quickscan Flora & Fauna Plangebied hoek Brugstraat – Van Echtenskanaal nz Klazienaveen' is opgenomen in Bijlage 2 van deze ruimtelijke onderbouwing.

Uit de Quickscan Flora & Fauna volgen de volgende conclusies:

  • Op de onderzochte locatie zijn geen beschermde planten- of diersoorten aangetroffen en deze worden er ook niet verwacht;
  • De geplande ingreep heeft geen grote impact op de gunstige staat van instandhouding van beschermde planten- of diersoorten;
  • Er worden bij uitvoer van de voorgenomen plannen geen verbodsbepalingen van de Wnb overtreden. Aanvullend onderzoek is niet noodzakelijk;
  • Aanvullend onderzoek op basis van het vleermuisprotocol, kennisdocumenten of handreiking kleine marterachtigen is niet noodzakelijk.


In het rapport worden daarnaast de volgende adviezen gegeven:

  • Geadviseerd wordt om de nieuwbouw natuur-inclusief te maken door middel van het plaatsen van inbouwkasten voor vleermuizen, huismussen en gierzwaluwen. Meer informatie over al het bovenstaande is te vinden op www.unitura.nl;
  • Daarnaast wordt geadviseerd om voor wat betreft de beplanting van de omgeving te kiezen voor inheems plantgoed. Informatie daarover is te vinden op https://www.cruydthoeck.nl/over-ons/de-heliant/

4.2.5 Conclusie

De plannen zijn niet in strijd met het gestelde binnen de Wet natuurbescherming. Ten aanzien van de aspecten gebieds- en soortenbescherming wordt het bouwplan uitvoerbaar geacht. 

De zorgplicht is onverkort van toepassing op de voorgenomen ontwikkeling. De zorgplicht die in de Wnb geïntroduceerd is richt zich op zowel gebieds- als soortenbescherming. Hiermee biedt de zorgplichtbepaling bescherming aan Natura 2000-gebieden, dieren, planten en hun directe leefomgeving. Het betreft bovendien niet alleen dieren en planten van soorten waarvoor de Vogelrichtlijn en de Habitatrichtlijn specifieke beschermingsmaatregelen eisen, maar alle in het wild levende dieren en planten.

4.3 Fysieke veiligheid

De Rijksoverheid stelt risiconormen op het gebied van veiligheid aan inrichtingen, ter bescherming van de omgeving. Naast de wet- en regelgeving mogen gemeenten invulling geven aan een eigen veiligheidsvisie. In de Beleidsnota externe veiligheid gemeente Emmen (april 2013) geeft de gemeente Emmen invulling aan deze beleidsruimte. In de gemeentelijke beleidsnota Externe Veiligheid zijn de ruimtelijke uitgangspunten van de structuurvisie verder uitgewerkt.

In de Beleidsnota externe veiligheid heeft de gemeente Emmen gekozen voor een gebiedsgerichte benadering voor de vestiging van risicovolle activiteiten. Tevens is in het beleid een afwegingskader bij concrete ruimtelijke beslissingen en voor de inzet van bestuurlijke uitvoeringsinstrumenten om de kwetsbaarheid van een object of activiteit die niet rechtstreeks onder de begripsbepaling van het Besluit externe veiligheid inrichtingen (Bevi) valt bepaald te beoordelen. Bij het opstellen van deze ruimtelijke onderbouwing is rekening gehouden met deze nota externe veiligheid.

4.3.1 Fysieke veiligheidssituatie

In het kader van regelgeving in relatie tot Externe Veiligheid gelden voor dit bouwplan geen belemmeringen.

4.3.1.1 Risicobronnen binnen het plangebied

Binnen het plangebied zijn geen risicobronnen aanwezig en met het voorliggend bouwplan worden geeni nieuwe risicobronnen gerealiseerd.

4.3.1.2 Risicobronnen buiten het plangebied

Eventuele buiten het plangebied gelegen risicobronnen liggen op zodanige afstand dat deze geen invloed hebben op de planlocatie.

afbeelding "i_NL.IMRO.0114.Zaak152462023-V501_0036.png"

Fig. 4.4: Weergave risicobronnen buiten het plangebied

Inrichtingen

Het bedrijf Cabot Norit heeft een risicoafstand (RP 10-6) van 25 m. Het bedrijf ligt op een afstand van circa 800 meter van het plangebied. Het bedrijf Rademakers Gieterij BV. heeft een milieuzone die niet buiten het eigen bedrijfsperceel reikt. Op het perceel is een propaantank gelegen met een veiligheidsafstand van 20 meter. Het bedrijf ligt op een afstand van circa 1 kilometer van het plangebied.

Bedrijven Cabot Norit en Rademakers Gieterij BV vormen geen knelpunt voor externe veiligheid.

LPG-tankstations

Het LPG-tankstation is een Bevi-inrichting en heeft een risico-afstand (PR 10-6) van 40 m (vulpunt), 25 m (reservoir) en 15 m (afleveringsinstallatie) met een invloedsgebied van 150 m. De afstand tot het plangebied is circa 950 meter. Daarmee is er geen sprake van invloed van het LPG-tankstation op de voorliggende bouwplan. Het LPG-tankstation vormt geen knelpunt voor externe veiligheid binnen het bouwplan.

Route gevaarlijke stoffen

De Rijksweg A37 heeft een PR-plafond van 0 m een GR-plafond van 48 m en geen plasbrandaandachtsgebied. De snelweg ligt op minimaal 900 meter afstand van het plangebied. De Rijksweg A37 vormt geen knelpunt voor externe veiligheid.

Buisleidingen

Een aardgasleiding (kenmerk N-522-62) ligt op meer dan 2,3 km afstand van het plangebied. Deze aardgasleiding heeft een invloedsgebied van 95 meter en levert geen belemmeringen op voor dit bestemmingsplan.

4.3.2 Groepsrisico

Ter plaatse van het plangebied bevinden zich geen inrichtingen met een risicocontour waartoe een nadere verantwoording van het plaatsgebonden dan wel groepsrisico dient plaats te vinden. Een nader onderzoek of berekening van het groepsrisico is dan ook niet nodig.

4.3.3 Inrichting en ontwikkeling

Bluswatervoorzieningen

Er is in de nabijheid voorzien in voldoende bluswatervoorzieningen.

Waarschuwings- en alarmeringssysteem

Het plangebied valt binnen de dekking van het WAS.

Bereikbaarheid en opstelplaatsen

Het plangebied is van meerdere kanten bereikbaar en voldoet hiermee aan de bereikbaarheidseisen. Het openbaar gebied en plangebied voorziet in adequate opstelplaatsen voor brandweervoertuigen.

Brandveiligheidsmaatregelen

Bij het realiseren van een woongebouw met een kleinschalig kantoorgebouw is het advies om bepaalde brandveiligheidsmaatregelen in acht te nemen. Denk hierbij aan de BIObiz factoren:

  • Bouwkundige voorzieningen, bijv. conform bouwregelgeving;
  • Installatietechnische voorzieningen, bijv. woningrookmelders en gebouwsprinklers;
  • Organisatorische voorzieningen, bijv. vluchtplan voor de bewoners;
  • Brandweeropkomsttijd, vrijhouden van wegen/ zo min mogelijk verkeer belemmerende maatregelen;
  • Inventaris, toepassen van moeilijk brandbaar materiaal;
  • Zelfredzaamheid van de aanwezigen bevorderen en toepassen veilige vluchtroutes.

4.3.4 Conclusie

In het kader van de regelgeving ten aanzien van fysieke veiligheid gelden voor het voorliggende bouwplan geen belemmeringen.

4.4 Milieu

In deze paragraaf worden de voor dit bestemmingsplan relevante milieuaspecten beschreven. Aangegeven wordt wat de beperkingen en mogelijkheden in het plangebied zijn, bezien vanuit verschillende milieudisciplines.

4.4.1 Vormvrije M.E.R.-beoordeling

In het voorliggend project komen activiteiten voor die voorkomen op de D-lijst van het Besluit m.e.r., te weten D11.2 'De aanleg, wijziging of uitbreiding van een stedelijk ontwikkelingsproject met inbegrip van de bouw van winkelcentra of parkeerterreinen'. In het Besluit m.e.r., bijlage D, onder artikel 11 (Woningbouw, Stedelijke ontwikkeling, Industrieterreinen) staat onder artikel 11.2 genoemd dat een m.e.r-beoordeling moet plaatsvinden in gevallen waarin de activiteit betrekking heeft op de aanleg, wijziging of uitbreiding van woningbouw, stedelijke ontwikkeling of industrieterrein indien het oppervlakte groter is dan 100 hectare of meer dan 2000 woningen omvat.

De voorgenomen ontwikkeling blijft onder deze drempelwaarden. Voor gevallen die onder de drempelwaarden blijven, geldt dat middels een vormvrije m.e.r. beoordeling beoordeeld dient te worden of de activiteit belangrijke nadelige gevolgen heeft voor het milieu. Ten behoeve van de voorgenomen ontwikkelingen is daarom een aanmeldnotitie Besluit m.e.r. opgesteld. Deze is opgenomen in Bijlage 3 bij deze ruimtelijke onderbouwing. In de aanmeldnotitie zijn de belangrijke potentiële nadelige gevolgen voor het milieu beschreven, waarbij is ingegaan op de kenmerken van het project, de plaats van het project en de kenmerken van de potentiële effecten.

Op basis hiervan is in de aanmeldnotitie geconcludeerd dat er geen sprake is van belangrijke nadelige gevolgen voor het milieu. Om die reden wordt voor voorliggend bouwplan volstaan met een vormvrije m.e.r.-beoordeling.

4.4.2 Bedrijven en milieuzonering

Vanuit milieuhygiënisch oogpunt vergt de bedrijvigheid in het plangebied een goede afstemming met de andere, in de omgeving aanwezige functies.

Ten behoeve van de voorliggende ruimtelijke ondebouwing heeft een inventarisatie plaatsgevonden van de aanwezige bedrijven in en nabij het plangebied en is nagedacht over de bedrijfsactiviteiten die toelaatbaar zijn in/nabij het plangebied. Voor het bepalen welke categorieën bedrijfsactiviteiten toelaatbaar zijn is in het kader van dit bestemmingsplan gebruik gemaakt van de VNG-uitgave 'Bedrijven en milieuzonering'.

Gemengd gebied

Het begrip ‘gemengd gebied’ wordt in de VNG-brochure gebruikt om richtafstanden tussen een bedrijventerrein of bedrijfslocatie en een gebied met een variatie aan functies weer te geven. De VNG-brochure geeft de volgende definitie aan: “Een gebied met een matige tot sterke functiemenging. Direct naast woningen komen andere functies voor, zoals winkels, horeca en kleine bedrijven. Ook lintbebouwing in het buitengebied met overwegend agrarische en andere bedrijvigheid. Daarnaast gebieden die direct langs de hoofdinfrastructuur liggen.”

Rondom het plangebied zijn bestaande centrumvoorzieningen, zoals winkels, (dag)horeca, maatschappelijk, dienstverlening, water, verkeersdoeleinden, ook wonen aanwezig. Geconcludeerd kan worden dat er sprake is van een ‘gemengd gebied’. Onderstaande tabel geeft de richtafstanden voor de verschillende omgevingstypes weer.

afbeelding "i_NL.IMRO.0114.Zaak152462023-V501_0037.png"

Fig. 4.5: Richtafstanden omgevingstype (VNG-publicatie Bedrijven en milieuzonering)

4.4.2.1 Verspreid liggende bedrijven (niet agrarisch)

In het kader van een goede ruimtelijke ordening is ruimtelijke afstemming tussen bedrijfsactiviteiten van solitair gelegen inrichtingen en gevoelige functies (woningen) noodzakelijk. Het plangebied en omliggende gronden zijn voornamelijk bestemd voor woondoeleinden.

Het plan voorziet in een nieuw woongebouw met een kleinschalig kantoorgebouw. Het kantoorgebouw (milieucategorie 1) heeft vanuit de VNG-brochure een richtafstand van 10 meter voor het aspect geluid. Bij een 'gemengd gebied' kunnen de richtafstanden met 1 afstandsstap verkleind worden. Een richtafstand van 10 meter wordt in een dergelijk geval ‘nul’ meter. Voor woningen onderling (nieuw en bestaand) gelden geen normafstanden en speelt milieuhinder niet.

Het beoogde gebruik van gronden in het plangebied zijn passend te beschouwen, waardoor een nadere verantwoording vanuit de 'VNG-publicatie Bedrijven en milieuzonering' (editie 2009) niet vereist is. Er is sprake van een passende milieuzonering die er niet voor zorgt dat milieubelastende en milieugevoelige bestemmingen op een onverantwoorde afstand van elkaar worden gesitueerd.

4.4.2.2 Conclusie

Het plangebied is gelegen in een ‘gemengd gebied’, grenzend aangemengd (centrum)gebied. Bij een 'gemengd gebied' kunnen de richtafstanden met 1 afstandsstap verkleind worden. Een richtafstand van 10 meter voor een kantoorgebouw wordt in een dergelijk geval ‘nul’ meter. Hierdoor worden de nieuwe appartementen in het woongebouw niet belemmerd door het kantoorgebouw en omliggende centrumvoorzieningen en belemmeren anderzijds de appartementen de bedrijven niet in hun bedrijfsvoering.

Ten aanzien van de aanwezige bedrijven in relatie tot het woongebouw in de ontwikkellocatie, mede gelet op de richtafstanden, is geen wederzijdse milieuhinder te verwachten. Geconcludeerd kan worden dat er sprake is van een aanvaardbaar woon- en leefklimaat ten aanzien van bedrijven en milieuzonering.

4.4.3 Bodem

Het college van burgemeester en wethouders heeft op 5 maart 2013 de Beleidsregel Bodemkwaliteit vastgesteld.

Om de kwaliteit te waarborgen, moet grondverzet worden gemeld bij het landelijk meldpunt. Om het verplaatsen van grond te vereenvoudigen, heeft de gemeente Emmen een aantal kaarten ontwikkeld. Deze bodemkwaliteitskaarten zijn als bijlage in de Nota Bodembeheer opgenomen. Aan de hand van deze kaarten is het mogelijk om zonder voorgaand onderzoek grond te ontgraven en toe te passen.

Partijen grond en baggerspecie die niet voldoen aan de bodemkwaliteitskaart en de Nota Bodembeheer van de gemeente Emmen mogen alleen worden toegepast als er sprake is van een nuttige toepassing. Is het werk niet ‘nuttig’, dan is er sprake van het zich ontdoen van ‘nuttig’ gebruik. Tijdelijke uitname zijn werkzaamheden waarbij de grond na korte tijd weer teruggebracht wordt. Een voorbeeld is het graven van een sleuf voor kabels en leidingen. In dat geval hoeft de kwaliteit van de te ontgraven bodem niet onderzocht te worden, tenzij er sprake is van (een verdenking van) bodemverontreiniging.

4.4.3.1 Bodemonderzoek

Door onderzoeksbureau Klijn Bodemonderzoek is 'Verkennend bodemonderzoek Brugstraat 1 en van Echtenskanaal NZ 130 te Klazienaveen' uitgevoerd. Het verkennend bodemonderzoek (projectnummer 22KL331, d.d. 2 december 2022) is toegevoegd als Bijlage 5 bij deze ruimtelijke onderbouwing. Hierna volgen de resultaten van het uitgevoerde onderzoek.

Van de bodemkwaliteit op de onderzoekslocatie is het volgende beeld verkregen:

  • Zintuiglijk zijn er verontreinigingen waargenomen. Wel is boring 8 gestaakt op een diepte van circa 0,3 m-mv, ter plaatse bevindt zich een harde grindlaag;
  • Op basis van de historie van het perceel en het uitgevoerde vooronderzoek wordt geconcludeerd dat onderhavige locatie als een niet verdachte locatie voor de aanwezigheid van asbest kan worden beschouwd. Deze conclusie wordt bevestigd doordat tijdens de boorwerkzaamheden op of in de bodem op basis van zintuiglijke waarnemingen geen asbestverdacht materiaal is geconstateerd;
  • Analytisch is in grondmengmonster MM1 (0,0-0,5 m-mv) een licht verhoogd gehalte aan PAK geconstateerd;
  • Analytisch zijn in grondmengmonster MM2 (1,0-2,0 m-mv) geen verhoogde gehalten met de onderzochte componenten geconstateerd;
  • Analytisch is in het grondwater een licht verhoogd gehalte aan naftaleen geconstateerd.

4.4.3.2 Conclusie

Gezien de resultaten van het onderzoek wordt geconcludeerd dat de voor de onderzoekslocatie opgestelde hypothese “niet verdachte locatie”, formeel gezien niet juist is. Er zijn immers op de locatie enkele licht verhoogde gehalten aangetroffen.

De geconstateerde verhoogde gehalten liggen onder de indexwaarde van 0,5 en/of interventiewaarde en vormen géén aanleiding tot het instellen van een nader bodemonderzoek.

Op basis van de onderzoeksresultaten bestaan er, vanuit milieuhygiënisch oogpunt gezien, geen belemmeringen ten aanzien van het gebruik van het terrein en de afgifte van een omgevingsvergunning ten behoeve van de geplande bouwactiviteiten op het terrein.

De mogelijk aanwezige ondergrondse tank op het perceel is tijdens het uitvoeren van de sloopwerkzaamheden van het pand en tijdens het uitvoeren van de veldwerkzaamheden niet aangetroffen. Vooralsnog wordt ervan uitgegaan dat deze tank niet meer op het perceel aanwezig is en is hierdoor niet als aparte deellocatie in onderhavig onderzoek betrokken.

Asbest

Op basis van de historie van het perceel, de uitgevoerde maaiveldinspectie en de zintuiglijke waarnemingen tijdens de boorwerkzaamheden - waarbij geen asbestverdachte materialen zijn aangetroffen - is het aannemelijk dat er geen sprake is van een verontreiniging van de bodem met asbest.

Hergebruik van grond

Voor de volledigheid kan nog worden vermeld dat de grond naar verwachting niet als schone grond kan worden hergebruikt. Voor grond welke op het perceel wordt toegepast gelden, gezien de geringe overschrijding(en) ten opzichte van de achtergrondwaarden, geen gebruiksbeperkingen.

4.4.4 Geluid

Regels ten aanzien van geluidhinder zijn vastgelegd in de Wet geluidhinder (Wgh). Het doel van de Wet geluidhinder is tweeledig. Enerzijds de bescherming van het milieu en anderzijds de bescherming van de volksgezondheid. Bepalend is steeds de situering van geluidsbronnen ten opzichte van geluidsgevoelige bestemmingen zoals woningen en scholen. De Wgh gaat uit van zones langs wegen, spoorwegen en industrieterreinen. Binnen dergelijke zones zijn nieuwe geluidsgevoelige bestemmingen alleen toegestaan indien de geluidsbelasting op de buitengevel onder of hoogstens gelijk is aan de voorkeursgrenswaarde. Ontheffing van de voorkeursgrenswaarde is toegestaan indien maatregelen om de geluidsbelasting op de buitengevels te beperken niet mogelijk zijn of onvoldoende helpen en indien aan bepaalde voorwaarden wordt voldaan.

4.4.4.1 Wegverkeerslawaai

Het woongebouw ligt binnen de geluidzone van het Van Echtenskanaal NZ, Brugstraat en de Dordsedijk. Omdat de nieuwe geluidsgevoelige bestemmingen worden gerealiseerd binnen de zone van een weg is de geluidsbelasting ten gevolge van deze wegen getoetst aan de grenswaarden van de Wet geluidhinder.

Door GeluidMeesters is een 'Akoestisch onderzoek wegverkeerslawaai nieuwbouw 'Het Pakhuis' te Klazienaveen' uitgevoerd. Het rapport met kenmerk 0096-W-21-K d.d. 2 februari 2023 is als Bijlage 6 bij deze ruimtelijke onderbouwing bijgevoegd.

4.4.4.2 Akoestisch onderzoek

Uit de resultaten van het akoestisch onderzoek blijkt dat de geluidbelasting van de Dordsedijk lager is dan de wettelijke voorkeursgrenswaarde van 48 dB L den. Deze weg vormt dan ook vanuit akoestisch oogpunt geen belemmering voor het voorgenomen bouwplan.

Zowel het Van Echtenskanaal NZ als de Brugstraat hebben op alle te realiseren woningen een overschrijding van de voorkeursgrenswaarde van 48 dB L den uit de Wet geluidhinder tot gevolg. De geluidbelasting bedraagt, op de maatgevende woning, als gevolg van het Van Echtenskanaal NZ ten hoogste 55 dB L den en als gevolg van de Brugstraat ten 60 dB L den. Daarmee wordt voor beide wegvakken de maximale ontheffingswaarde van 63 dB L den niet overschreden.

Op basis van de volgende argumenten dienen voor de 10 woningen hogere grenswaarden te worden vastgesteld. Het ontwerpbesluit hogere grenswaarden is opgenomen in Bijlage 7 van deze ruimtelijke onderbouwing.

Bronmaatregelen

Het toepassen van een type asfalt met een hogere reducerende werking zal gelet op de ovonde extra onderhoudskosten door wringing van het asfalt tot gevolg hebben. Het aanbrengen van deze maatregel zal dan ook op financiële bezwaren stuiten. Een type asfalt met een hogere reducerende werking zal daarnaast onvoldoende effect sorteren om de geluidbelasting tot de voorkeursgrenswaarde te reduceren.


Overdrachtsmaatregelen

Een geluidscherm/grondwal op deze locatie zal naar verwachting stuiten op belemmeringen vanuit stedenbouwkundig oogpunt. Voor een dergelijke maatregel is er ook onvoldoende ruimte en/of zal belemmeringen vormen voor de ontsluiting van het perceel (parkeerplaatsen) op de openbare weg.


Cumulatie

De gecumuleerde geluidbelasting van wegverkeer bedraagt ten hoogste 60 (65-5=) dB L den (inclusief aftrek art 110g Wgh). Daarmee is de geluidbelasting niet hoger dan de maximale ontheffingswaarde van een individuele geluidbron en wordt onzes inziens acceptabel geacht. Er is geen sprake van andere relevante geluidbronnen zoals industrie of railverkeer. De beoordeling is uiteindelijk aan de gemeente.


Karakteristieke geluidwering

Om een goed binnenklimaat te realiseren zal de karakteristieke geluidwering van de uitwendige scheidingsconstructie worden afgestemd op de gecumuleerde geluidbelasting (exclusief aftrek art. 110g Wgh.) en een binnenniveau van 33 dB (eis nieuwbouw Bouwbesluit). Dit komt neer op een geluidwering voor de maatgevende woning van (65-33 =) 32 dB. Voor de berekening van de geluidwering zal een aanvullend rapport moeten worden opgesteld.

Conclusie

Redelijkerwijs zijn er geen doelmatige en/of effectieve maatregelen in de vorm van bron en overdracht mogelijk om de geluidbelasting te reduceren tot de voorkeursgrenswaarde. Daarom dienen voor de 10 woningen hogere grenswaarden te worden vastgesteld. Het ontwerpbesluit hogere grenswaarden is opgenomen in Bijlage 7 van deze ruimtelijke onderbouwing.

4.4.4.3 Onderzoek geluidwering gevel

Door Kroon Bouwfysica is een bouwakoestisch onderzoek uitgevoerd naar de geluidwering van de gevels. Het rapport d.d. 26 oktober 2023 ref. 20231430 is opgenomen in Bijlage 8 bij deze ruimtelijke onderbouwing.

In onderstaand tabel (figuur 4.6) is aangegeven welke bouwkundige voorzieningen benodigd zijn.

afbeelding "i_NL.IMRO.0114.Zaak152462023-V501_0038.png"

Fig. 4.6: Benodigde bouwkundige voorzieningen

De geluidbelasting, eisen en berekeningen van de karakteristieke geluidwering zijn samengevat in onderstaande tabel (figuur 4.7).

afbeelding "i_NL.IMRO.0114.Zaak152462023-V501_0039.png"

Fig. 4.7: Overzicht geluidwering gevel berekeningen.

Conclusie

Geconcludeerd wordt dat de vereiste minimale karakteristieke geluidwering gerealiseerd wordt met de naden, kierdichtingen, beglazing, kozijnen, roosters, gevel- en dakopbouw zoals aangegeven bij de paragraaf bouwkundige voorzieningen.

Er wordt op gewezen om de vereiste geluidwering ook werkelijk te realiseren, een zorgvuldige uitvoering van groot belang is. Vooral slechtere naad- en kierdichtingen, bijvoorbeeld door een onvoldoende kwaliteit beslag op te openen delen, kunnen leiden tot een sterk tegenvallend eindresultaat.

4.4.4.4 Conclusie

Ten behoeve van voorliggende omgevingsvergunning dient een hogere waarde procedure te worden doorlopen. Het ontwerpbesluit hogere grenswaarde is opgenomen in Bijlage 7.

Uit het bouwakoestisch onderzoek volgt dat de vereiste minimale karakteristieke geluidwering gerealiseerd wordt met de naden, kierdichtingen, beglazing, kozijnen, roosters, gevel- en dakopbouw.

4.4.5 Luchtkwaliteit

Op 15 november 2007 is de Wet luchtkwaliteit in werking getreden. De wet is enerzijds bedoeld om de negatieve effecten op de volksgezondheid aan te pakken, als gevolg van te hoge niveaus van luchtverontreiniging. Anderzijds heeft de wet tot doel mogelijkheden te creëren voor ruimtelijke ontwikkeling. Volgens de nieuwe regeling vormt luchtkwaliteit in beginsel geen belemmering voor het uitoefenen van een ruimtelijk project als aan minimaal één van de volgende voorwaarden wordt voldaan:

  • er is geen sprake van een feitelijke of dreigende overschrijding van een grenswaarde;
  • een project leidt, al dan niet per saldo, niet tot een verslechtering van de luchtkwaliteit;
  • een project draagt 'niet in betekenende mate' (NIMB) bij aan de luchtverontreiniging;
  • een project past binnen het Nationaal Samenwerkingsprogramma Luchtkwaliteit (NSL) of binnen een regionaal programma van maatregelen.

4.4.5.1 Luchtkwaliteit plangebied

Projecten die ‘niet in betekende mate’ (nibm) van invloed zijn op de luchtkwaliteit hoeven niet meer getoetst te worden aan de grenswaarden voor luchtkwaliteit. In de AMvB-nibm zijn de criteria vastgelegd om te kunnen beoordelen of voor een project sprake is van nibm. Zo is een project waarbij in totaal 1.500 woningen aan één ontsluitingsweg worden gebouwd nog aangemerkt als een Nibm-project.

De werkzaamheden die gaan plaatsvinden in het plangebied houden in dat er bouwwerkzaamheden gaan plaatsvinden ten behoeve van het realiseren van een woongebouw met tien appartementen en een kleinschalig kantoorgebouw in een bestaand centrumgebied van Klazienaveen. Het voorgenomen bouwplan blijft daarmee ruimschoots onder de drempelnorm. Nader onderzoek naar luchtkwaliteit is daarom niet nodig.

4.4.5.2 Conclusie

Omdat er geen significante ontwikkelingen in of rondom het plangebied gepland zijn, zal de concentratie van de NOX en fijnstof niet veranderen. Dit betekent dat de luchtkwaliteit geen belemmering vormt voor het voorgenomen bouwplan.

4.5 Bezonning

Bij bezonning in ruimtelijke plannen gaat het om voldoende zon op de gevel en om schaduwwerking. Nieuwbouw kan schaduw veroorzaken op de openbare ruimte of tuinen van omwonenden. Voorkomen moet worden dat de schaduw te veel toeneemt. Sommige functies hebben juist een goede bezonning nodig, zoals tuinen, terrassen of speelplekken. Er is geen wet- en regelgeving voor bezonning. Bezonningsdiagrammen geven inzicht in de bezonning van de gevels en (extra) schaduw op de omgeving.

Relatie tot het project

Er zijn bezonningsdiagrammen opgesteld voor de toekomstige situatie. De diagrammen zijn in Bijlage 9 bij deze ruimtelijke onderbouwing opgenomen.

Uit de diagrammen volgt dat er als gevolg van het plan in de wintermaanden (december) rond het middaguur (hoogste zon) en vroege voorjaar (maart in de ochtend) een wijziging optreedt in de schaduwwerking op de naburige percelen.

Er treedt een wijziging op in de schaduwwerking op de zuidelijke gevel van de woning Brugstraat 2. Hierbij dient nog in acht te worden genomen dat er zich aanzienlijk hoge blinde gevel van het voormalig pand Brugstraat 1, dat zich pal op de perceelsgrens bevond reeds voor schaduwvorming zorgden, welke niet zijn opgenomen in deze bezonningsstudie.

Waar in de huidige situatie deze schaduwwerking zich richt op met name de zijgevel bebouwing aan de Brugstraat 2, verplaatst de schaduw zich in de toekomstige situatie - in de wintermaanden - op de zuidelijke zijgevel, in oostelijke richting, richting het voorste raamkozijn in de zijgevel van die woning, zij het in beperkte mate.

Voor de overige omliggende bebouwing, in het bijzonder Van Echtenskanaal NZ 128, doet zich een beperkte wijziging ten aanzien van de schaduwwerking in de achtertuin. Deze schaduw is het grootst in de wintermaanden (ochtend en middag) en het vroege voorjaar in de ochtend.

Op grond van voorgaande wordt de bezonningssituatie aanvaardbaar geacht.

Inzichtelijk is gemaakt dat er sprake is van een geringe toename van schaduwhinder en een marginale afname van bezonning in de tuin/terras en de zuidelijke zijgevel van de woning aan de Brugstraat 2 en de tuin/terras van de woning aan de Van Echtenskanaal NZ 128. Er is echter geen sprake van een onevenredige afname van zonlicht. Voldaan is aan de lichte TNO-norm.

4.5.1 Conclusie

Het aspect bezonning vormt geen belemmering voor het voorgenomen bouwplan.

4.6 Waterparagraaf

In deze waterparagraaf wordt beschreven hoe het huidige waterhuishoudkundig systeem voor het plangebied op de hoeklocatie aan de Van Echtenskanaal NZ en Brugstraat, welke fysieke omstandigheden voor het gebied gelden en of speciale functies voor het plangebied gelden. Naast een beschrijving van de waterhuishoudkundige consequenties van het plan en de stedelijke wateropgave heeft het wateradvies van het waterschap een duidelijke plaats gekregen.

4.6.1 Waterbeleid

De Europese Kaderrichtlijn Water is richtinggevend voor de bescherming van de oppervlaktewaterkwaliteit in de landen in de Europese Unie. Aan alle oppervlaktewateren in een stroomgebied worden kwaliteitsdoelen gesteld die in 2015 moeten worden bereikt. Ruimtelijk relevant rijksbeleid is verwoord in de Nota Ruimte en het Nationaal Waterplan (inclusief de stroomgebiedbeheerplannen).

Op provinciaal niveau zijn de Omgevingsvisie en de bijbehorende Omgevingsverordening richtinggevend voor ruimtelijke plannen.

Het Waterschap Vechtstromen heeft de beleidskaders van rijk en provincie nader uitgewerkt in het Waterbeheerplan 2016-2021. De belangrijkste ruimtelijk relevante thema's zijn waterveiligheid, klimaatbestendigheid omgeving en ruimte voor waterberging. Daarnaast is de Keur van Waterschap Vechtstromen een belangrijk regelstellend instrument waarmee in ruimtelijke plannen rekening moet worden gehouden.

Op gemeentelijk niveau zijn het in overleg met Waterschap Vechtstromen opgestelde gemeentelijk Waterplan en het gemeentelijk Rioleringsplan van belang bij het afwegen van waterbelangen in ruimtelijke plannen.

4.6.1.1 Watersysteem

In het waterbeheer van de 21e eeuw worden duurzame, veerkrachtige watersystemen nagestreefd. Dit betekent concreet dat droge perioden worden doorstaan zonder droogteschade, vissterfte en stank, en dat in natte perioden geen overlast optreedt door hoge grondwaterstanden of inundaties vanuit oppervlaktewateren. Problemen worden niet afgewenteld op andere gebieden of latere generaties. Het principe "eerst vasthouden, dan bergen, dan pas afvoeren" is hierbij leidend. Rijk, provincies en gemeenten hebben in het Nationaal Bestuursakkoord Water doelen vastgelegd voor het op orde brengen van het watersysteem.

4.6.1.2 Afvalwaterketen

Het zoveel mogelijk scheiden van vuil en schoon water is belangrijk voor het bereiken van een goede waterkwaliteit. Door te voorkomen dat grote hoeveelheden relatief schoon hemelwater door rioolstelsels worden afgevoerd, neemt het aantal overstorten van verontreinigd rioolwater op oppervlaktewater af en neemt de doelmatigheid van de rioolwaterzuivering toe. Hierdoor verbetert zowel de kwaliteit van oppervlaktewateren waarop overstorten plaatsvinden als de kwaliteit van het effluent ontvangende oppervlaktewater. Indien het schone hemelwater door middel van infiltratie in het gebied wordt vastgehouden alvorens het wordt afgevoerd naar oppervlaktewater, draagt dit bovendien bij aan de duurzaamheid van het watersysteem. Vandaar dat het principe "eerst schoonhouden, dan scheiden, dan pas zuiveren" een belangrijk uitgangspunt is bij nieuwe stedelijke ontwikkelingen. Als het hemelwater niet wordt aangekoppeld of wordt afgekoppeld van het bestaande rioolstelsel is oppervlakkige afvoer en infiltreren in de bodem uitgangspunt. Als infiltratie in de bodem niet mogelijk is, is lozing op het oppervlaktewater via een bodempassage gewenst.

4.6.2 Wateraspecten plangebied

Grondgebruik

Het plangebied wordt gekenmerkt door een braakliggend terrein aan op de hoek van de Van Echtenskanaal NZ en Brugstraat. Op deze locatie is de voormalige bebouwing gesloopt.

Bodemopbouw en hoogteligging

Het plangebied bestaat uit 1260 m2. Het maaiveld ligt op +20,03 meter N.A.P. in het plangebied. Binnen het plangebied is de bodemopbouw onbekend.

Grondwater

Binnen het plangebied bevinden zich geen peilbuizen, waarmee het grondwater gemeten kan worden. Het gebied valt binnen een zogeheten peilvak, waarvan het zomerpeil op +15,80 meter N.A.P. ligt en het winterpeil op +15,80 meter N.A.P.

4.6.3 Waterhuishouding plangebied

Waterhuishouding

Het plan loopt geen verhoogd risico op wateroverlast als gevolg van overstromingen. Het plan heeft geen schadelijke gevolgen voor de waterkwaliteit en ecologie.

In het verleden is erin of rondom het plangebied geen wateroverlast of grondwateroverlast geconstateerd. Het plangebied bevindt zich niet binnen een beschermingszone of herinrichtingszone langs een waterloop, primair watergebied, invloedszone zuiveringstechnisch werk of een retentiecompensatiegebied.

Toe- of afname verhard oppervlakte

In de bestaande situatie is sprake van volledig verhard terrein en voormalige bebouwing bij het voormalige sportschool en winkel-/woonpand. In de nieuwe situatie wordt er een woongebouw met kantoorfunctie met een bergingencomplex gerealiseerd. Naast bebouwing worden parkeerplaatsen en erfverharding aangelegd. De gezamenlijke (erf)verharding in het plangebied bedraagt circa 922 m2. Er is derhalve geen sprake van een toename van verhard oppervlak. In vergelijking met de bestaande situatie neemt de oppervlakte van het verhard terrein af met circa 338 m2. Compenserende maatregelen in verband met een toename van verhard oppervlakte zijn niet aan de orde.

Voorkeursbeleid hemelwaterafvoer

In het plan wordt het afvalwater en het hemelwater afgevoerd via een gescheiden systeem voor hemelwaterafvoer en riool.

4.6.4 Waterbeheer, (grond) waterkwantiteit - en kwaliteit

Klazienaveen ligt centraal in de gemeente Emmen, ten zuidoosten van Emmen. Het dorp bestaat overwegend uit woongebieden en enkele bedrijventerreinen. De gebruiksfuncties van het gebied zijn wonen en werken. Het betreft veenkoloniale gebied op uitlopers van de Hondsrug.

Water is belangrijk voor het welzijn van mens en dier. In bebouwd gebied vormt het tevens een belangrijk ordenend en esthetisch element. Om aan dit doel te voldoen is het belangrijk dat het water van goede kwaliteit is en voldoende zuurstof bevat. Voor Klazienaveen betekent dit dat bij nieuwe ontwikkelingen er in elk geval op moet worden gelet dat:

  • alleen water wordt aangelegd op plaatsen waar dit op natuurlijke wijze kan;
  • water verbonden is met de rest van het watersysteem;
  • er voldoende oeverbegroeiing is;
  • afstromend regenwater schoon is en blijft;
  • lozingen vanuit de riolering worden voorkomen.

Het plangebied wordt overwegend getypeerd als infiltratiegebied.


Aanbeveling bouwpeil

Geadviseerd wordt om het bouwpeil minimaal 0,30 meter boven het te realiseren, aangrenzende straatpeil te maken zodat bij een hevige regenbui het regenwater niet de woningen instroomt.

Berging regenwater binnen het plangebied

Omdat het toenemend verhard oppervlak (daken, straten) kleiner is dan 1500 m2 stelt het waterschap geen eisen omtrent het realiseren van een waterberging.

Ten aanzien van de voormalige bebouwing en verharding ten behoeve van een sportschool en kantoor/woonpand is in het plangebied in de nieuwe situatie een afname van circa 338 m2 aan verharding.

Het regenwater wat op daken valt wordt middels een buis ondergronds afgevoerd. In het plangebied zijn een groenstructuur aanwezig (tuinen en bermen) die voor natuurlijke infiltratie zorgen.

4.6.5 Wateradvies waterschap

De initiatiefnemer heeft het waterschap Vechtstromen geïnformeerd over het plan door op 19 juli 2023 gebruik te maken van de digitale watertoets. De beantwoording van de vragen heeft ertoe geleid dat de korte procedure van de watertoets is toegepast. De bestemming en de grootte van het plan hebben een geringe invloed op de waterhuishouding.

De procedure in het kader van de watertoets is goed doorlopen. Het waterschap Vechtstromen geeft een positief wateradvies. De watertoets ‘korte procedure, d.d. 19 juli 2023’ is als Bijlage 10 bij deze ruimtelijke onderbouwing opgenomen.

Hoofdstuk 5 Uitvoerbaarheid

5.1 Algemeen

Wettelijk bestaat de verplichting om inzicht te geven in de uitvoerbaarheid van een project. Wat dat betreft wordt een onderscheid gemaakt in de maatschappelijke en de economische uitvoerbaarheid.

5.2 Maatschappelijke uitvoerbaarheid

In deze paragraaf wordt de maatschappelijke uitvoerbaarheid beschreven. De maatschappelijke uitvoerbaarheid heeft als doel om aan te tonen dat het project maatschappelijk draagvlak heeft.

De uitgebreide voorbereidingsprocedure als bedoeld in artikel 3.10 van de Wabo is van toepassing. In dit geval is de gemeente Emmen het bevoegd gezag voor het nemen van het besluit tot verlenen van de omgevingsvergunning.

Een ontwerpbeschikking ligt voor een periode van zes weken ter inzage. Gedurende deze periode kunnen zienswijzen worden ingediend.

5.3 Economische uitvoerbaarheid

Per 1 juli 2008 is de Wet ruimtelijke ordening in werking getreden. Afdeling 6.4 van de Wet ruimtelijke ordening verplicht de gemeente tot het verhalen van kosten bij grondexploitatie via een exploitatieplan, tenzij kostenverhaal anderszins is verzekerd. De toepassing voor het afdwingbare kostenverhaal richt zich op bouwplannen. De definitie van wat onder een bouwplan wordt verstaan, is opgenomen in artikel 6.2.1 van het Besluit ruimtelijke ordening (Bro). Uit dit artikel blijkt dat onder een bouwplan o.a. wordt verstaan de bouw van een woning of de uitbreiding van een gebouw van 1000 m2 of meer.

Plankosten

De kosten voor de procedure voor het verlenen van een omgevingsvergunning zijn in dit geval gedekt op grond van de Verordening op de heffing en invordering van leges 2014, als vastgesteld door de raad op 19 december 2013.

Voor dit plan zijn (vooralsnog) door de gemeente geen aanvullende kosten voor onderzoek begroot en gemaakt. De vaststelling van een exploitatieplan is zodoende niet nodig, aangezien het kostenverhaal nu anderszins verzekerd is.

Planschade

De Wet ruimtelijke ordening (Wro) geeft in artikel 6.1 aan dat een belanghebbende onder bepaalde voorwaarden en beperkingen recht kan doen gelden op een tegemoetkoming in de schade als gevolg van de bepalingen van een bestemmingsplan, bijvoorbeeld een planwijziging, of een besluit omtrent een omgevingsvergunning voor een activiteit als bedoeld in artikel 2.1, eerste lid, onder c, van de Wet algemene bepalingen omgevingsrecht.

Eventuele planschade als gevolg van dit project zal voor rekening van de initiatiefnemer zijn. Hiervoor wordt een planschadeverhaalsovereenkomst aangegaan tussen de gemeente en initiatiefnemer.


Financiële uitvoerbaarheid

De ontwikkeling betreft een particulier initiatief, waarmee de gemeente geen directe financiële bemoeienis heeft. De initiatiefnemer draagt de kosten voor het project. De initiatiefnemer is financieel gezien in staat de kosten voor de uitvoering van het project te dragen. Daarmee is het project economisch uitvoerbaar.